14.8万円
1LDK
種別 マンション
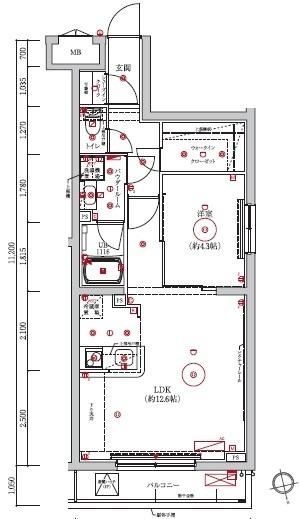
専有面積 46.02㎡
おすすめ
ポイント
ぜひ一度見ていただきたい、「LUMEED梅島」です。浴室乾燥機を備え付けているので、雨の日で濡れた
| 築年月 | 2025年12月 |
|---|---|
| 構造 | 鉄筋コンクリート造 |
| 所在階 | 5階建ての2階 |
| 向き | 北 |
| バルコニー面積 | - |
| 駐車場 | なし |
| 入居可能日 | 相談 |
| 賃貸借の種類 | 普通賃貸借 |
| 契約期間 | 2年 |
| 共益費・管理費 | 10,000円 |
| 敷金 | 14.8万円 |
| 礼金 | 148,000円 |
| 保証金 | - |
| 償却金 | - |
| 更新料 | 更新前賃料:1ヶ月 |
| 保証料等 | 要加入 |
| 保証会社補足 | JACCS 初回保証料/総賃料の50% 年間保証料/10,000円 口座振替手数料/350円 |
| 取引態様 | 媒介 |
| 情報更新日 | 2026年1月11日 |
| 次回更新予定日 | 2026年1月14日 |
設備・特記
《設備》角部屋/エレベータ/宅配ボックス/都市ガス/公営水道/下水/CATV/BSアンテナ/CSアンテナ/オートロック/TVモニター付きインターホン/防犯カメラ/エアコン/バス・トイレ別/浴室乾燥機/追い焚き風呂/温水洗浄便座/トイレ/フローリング/室内洗濯機置場/クローゼット/システムキッチン/ガスコンロ(2口)
《物件の特徴》新築/ペット相談可/楽器不可/二人入居可/事務所利用不可/保証人不要
《その他一時金》事務管理手数料:11000円
《その他月額費用》-
備考
《その他》セキュリティ面は、TVインターホン・オートロックなどを設置しているので安全面でも優れております。留守中に注文した商品が届くので、配送時間を気にせず注文ができる宅配ボックスを共用部に備えております。こちらの物件はエレベーター付きです。沿線上でお住まいをお探しなら、梅島周辺はいかがでしょうか。当社へのご連絡は、03-5909-5601かinfo@sk-com.jpにお待ちしております。
※現状と異なる場合は、現状を優先させていただきます。取引態様の欄に「媒介」と表示された物件は「仲介物件」です。ご成約の際には仲介手数料を申し受けます。