15.9万円
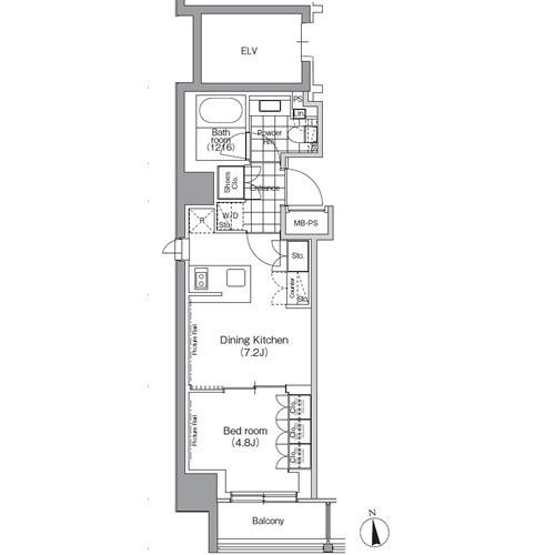
1DK
種別 マンション
専有面積 31.29㎡
おすすめ
ポイント
荷物を直接受け取れないときに、宅配ボックスがあれば配達時間を気にすることなく、時間を有効利用するこ
| 築年月 | 2014年2月 |
|---|---|
| 構造 | 鉄筋コンクリート造 |
| 所在階 | 13階建ての3階 |
| 向き | 南 |
| バルコニー面積 | 3.36㎡ |
| 駐車場 | 有り 月額35,200円 |
| 入居可能日 | 2026年1月31日予定 |
| 賃貸借の種類 | 普通賃貸借 |
| 契約期間 | 2年 |
| 共益費・管理費 | 15,000円 |
| 敷金 | 15.9万円 |
| 礼金 | - |
| 保証金 | - |
| 償却金 | - |
| 更新料 | 159,000円 |
| 保証料等 | 要加入 |
| 保証会社補足 | 初年度保証料:賃料等合計額の50%(最低保証料2万円)2年目以降:1年毎1万円 |
| 取引態様 | 媒介 |
| 情報更新日 | 2026年1月13日 |
| 次回更新予定日 | 2026年1月18日 |
設備・特記
《設備》ガスコンロ(2口)/フローリング/バルコニー/室内洗濯機置場/照明器具/バス・トイレ別/浴室乾燥機/追い焚き風呂/温水洗浄便座/シャワー/エアコン/オートロック/TVモニター付きインターホン/防犯カメラ/インターネット対応/角部屋/エレベータ/宅配ボックス/敷地内駐車場/キッズルーム
《物件の特徴》ペット相談可/ピアノ相談可/事務所使用可
《その他一時金》鍵交換費用:33000円
《その他月額費用》-
備考
《その他》セキュリティ面は、TVインターホン・オートロックなど充実しているので、防犯対策もばっちりです。不在時でも荷物を受け取れるため、時間調整の手間が省ける宅配ボックスを備えております。浴室乾燥機を備え付けているので、外に干したくない日でも効率よくカラッと乾かせます。門前仲町付近での新生活の第一歩をサポート致します。お部屋探しなら、当社まで<info@sk-com.jp>からお問い合せ下さい。
※現状と異なる場合は、現状を優先させていただきます。取引態様の欄に「媒介」と表示された物件は「仲介物件」です。ご成約の際には仲介手数料を申し受けます。