19.5万円
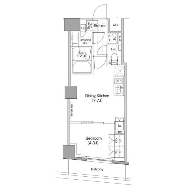
1DK
種別 マンション
専有面積 30.59㎡
おすすめ
ポイント
オートロック付きのマンションなので新生活を安心して始めることができます。共用部には宅配ボックスが付い
| 築年月 | 2018年1月 |
|---|---|
| 構造 | 鉄筋コンクリート造 |
| 所在階 | 地下1階・地上7階建ての7階 |
| 向き | 南 |
| バルコニー面積 | 4.32㎡ |
| 駐車場 | なし |
| 入居可能日 | 相談 |
| 賃貸借の種類 | 普通賃貸借 |
| 契約期間 | 2年 |
| 共益費・管理費 | 10,000円 |
| 敷金 | 19.5万円 |
| 礼金 | - |
| 保証金 | - |
| 償却金 | - |
| 更新料 | 195,000円 |
| 保証料等 | 要加入 |
| 保証会社補足 | 初年度保証料:賃料等合計額の30%(最低保証料1.2万円)2年目以降:1年毎1万円 |
| 取引態様 | 媒介 |
| 情報更新日 | 2026年1月15日 |
| 次回更新予定日 | 2026年1月21日 |
設備・特記
《設備》オートロック/防犯カメラ/BSアンテナ/CSアンテナ/エレベータ/宅配ボックス/キッズルーム
《物件の特徴》ペット相談可/ピアノ相談可/事務所使用可
《その他一時金》鍵交換費用:33000円
《その他月額費用》-
備考
《その他》ザ・パークハビオ新宿:新宿三丁目駅にも近くて便利。建物のエントランスには防犯対策として優れているオートロック機能を備えております。チューナー内蔵のTVをお持ちなら、契約のみでBS視聴可能です。当社では、新宿三丁目付近で住まい探しをされる様々な方のニーズにお応えします。メールでのお問い合せは<info@sk-com.jp>からお待ちしております。
※現状と異なる場合は、現状を優先させていただきます。取引態様の欄に「媒介」と表示された物件は「仲介物件」です。ご成約の際には仲介手数料を申し受けます。