18.5万円
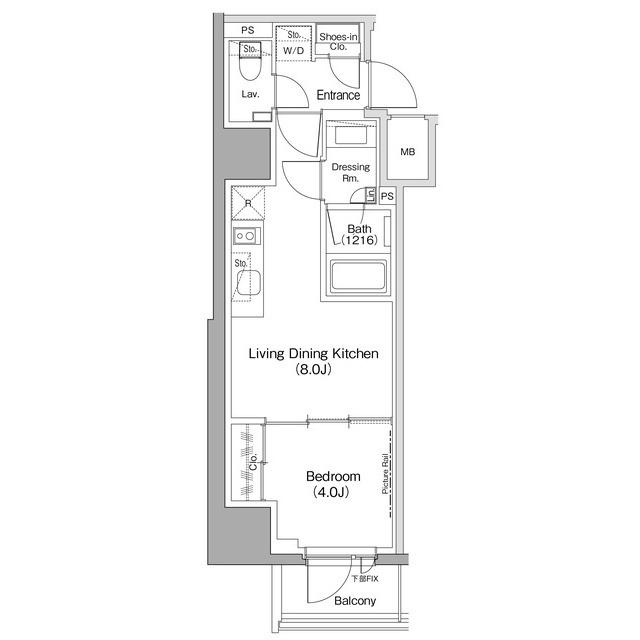
1LDK
種別 マンション
専有面積 32.31㎡
おすすめ
ポイント
共用部には宅配ボックスがあるので、荷物の受け取りのために早く帰宅する必要がありません。オートロック付
| 築年月 | 2022年11月 |
|---|---|
| 構造 | 鉄筋コンクリート造 |
| 所在階 | 14階建ての6階 |
| 向き | 南東 |
| バルコニー面積 | 2.73㎡ |
| 駐車場 | なし |
| 入居可能日 | 相談 |
| 賃貸借の種類 | 普通賃貸借 |
| 契約期間 | 2年 |
| 共益費・管理費 | 10,000円 |
| 敷金 | 18.5万円 |
| 礼金 | - |
| 保証金 | - |
| 償却金 | - |
| 更新料 | 185,000円 |
| 保証料等 | 要加入 |
| 保証会社補足 | SBIギャランティ 初年度保証料:賃料等合計額の40%(最低保証料2万円)2年目以降:1年毎8千円 |
| 取引態様 | 媒介 |
| 情報更新日 | 2026年1月16日 |
| 次回更新予定日 | 2026年1月22日 |
設備・特記
《設備》オートロック/防犯カメラ/エレベータ/宅配ボックス/キッズルーム
《物件の特徴》ペット相談可/ピアノ相談可
《その他一時金》鍵交換費用:33000円
《その他月額費用》-
備考
《その他》オートロック機能があるので来訪者は基本的に玄関先まで来ることがなく防犯対策につながります。共用部には宅配ボックスが付いているため、荷物を受け取るために早く帰宅する必要がありません。設備・環境ともに良い18.5万円の物件です。五反田周辺なら、通勤や通学に不便を感じることもないでしょう。お部屋探しをするのであれば、ピタットハウス新宿西口店にお任せください。
※現状と異なる場合は、現状を優先させていただきます。取引態様の欄に「媒介」と表示された物件は「仲介物件」です。ご成約の際には仲介手数料を申し受けます。