15万円
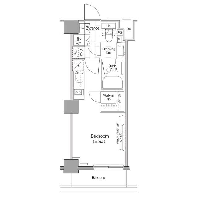
1R
種別 マンション
専有面積 25.17㎡
おすすめ
ポイント
ザ・パークハビオ新宿:新宿三丁目駅にも近くて便利。不在時でも荷物を受け取ることができるため、時間調整
| 築年月 | 2018年1月 |
|---|---|
| 構造 | 鉄筋コンクリート造 |
| 所在階 | 地下1階・地上7階建ての2階 |
| 向き | 東 |
| バルコニー面積 | 3.72㎡ |
| 駐車場 | なし |
| 入居可能日 | 相談 |
| 賃貸借の種類 | 普通賃貸借 |
| 契約期間 | 2年 |
| 共益費・管理費 | 10,000円 |
| 敷金 | 15万円 |
| 礼金 | - |
| 保証金 | - |
| 償却金 | - |
| 更新料 | 150,000円 |
| 保証料等 | 要加入 |
| 保証会社補足 | 初年度保証料:賃料等合計額の30%(最低保証料1.2万円)2年目以降:1年毎1万円 |
| 取引態様 | 媒介 |
| 情報更新日 | 2026年1月29日 |
| 次回更新予定日 | 2026年2月4日 |
設備・特記
《設備》BSアンテナ/CSアンテナ/オートロック/防犯カメラ/エレベータ/宅配ボックス/キッズルーム
《物件の特徴》ペット相談可/ピアノ相談可/事務所使用可
《その他一時金》鍵交換費用:33000円
《その他月額費用》-
備考
《その他》建物のエントランスには安全性に優れているオートロック機能を備えております。不在時でも荷物を受け取ることができるため、時間調整の手間が省ける宅配ボックスが付いております。キッズルームありの物件です。新宿区でのベストな暮らしを実現に。新宿三丁目周辺で新生活をスタートさせましょう。info@sk-com.jpからピタットハウス新宿西口店にお気軽にご連絡を。
※現状と異なる場合は、現状を優先させていただきます。取引態様の欄に「媒介」と表示された物件は「仲介物件」です。ご成約の際には仲介手数料を申し受けます。