32万円
1LDK
種別 一戸建
専有面積 78.27㎡
おすすめ
ポイント
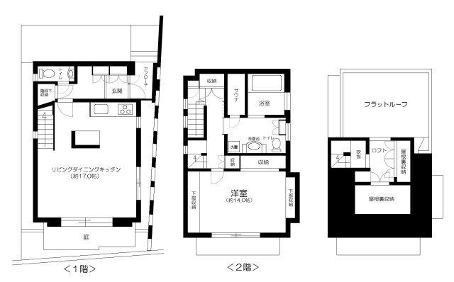
お手入れしやすくなっているので綺麗な状態を保ちやすい洗面化粧台が付いています。多目的に使えるロフト
| 築年月 | 2005年5月 |
|---|---|
| 構造 | 木造 |
| 所在階 | 2階建ての1階 |
| 向き | 北西 |
| バルコニー面積 | - |
| 駐車場 | なし |
| 入居可能日 | 相談 |
| 賃貸借の種類 | 定期賃貸借 |
| 契約期間 | 5年 |
| 共益費・管理費 | 10,000円 |
| 敷金 | 32万円 |
| 礼金 | 320,000円 |
| 保証金 | - |
| 償却金 | 32.0万円 |
| 更新料 | 更新前賃料:1ヶ月 |
| 保証料等 | 要加入 |
| 保証会社補足 | 当社指定の保証会社をご利用頂くことが契約条件となります。 |
| 取引態様 | 媒介 |
| 情報更新日 | 2026年2月10日 |
| 次回更新予定日 | 2026年2月11日 |
設備・特記
《設備》バス・トイレ別/光回線/専用庭/駐輪場/ロフト/室内洗濯機置場
《物件の特徴》定期借家権
《その他一時金》入居者サポート料:22000円 / 鍵交換費用:44000円
《その他月額費用》-
備考
《その他》化粧品や洗面道具といった小物をまとめてスッキリ収納できる洗面化粧台を採用しています。この物件は駐輪場付きの物件です。設備条件が充実した月々32万円台のお部屋です。新宿区の賃貸情報のことなら03-5909-5601またはinfo@sk-com.jpよりピタットハウス新宿西口店に何でもご相談下さい。お客様のご希望にできる限りお応えします。
※現状と異なる場合は、現状を優先させていただきます。取引態様の欄に「媒介」と表示された物件は「仲介物件」です。ご成約の際には仲介手数料を申し受けます。