29.1万円
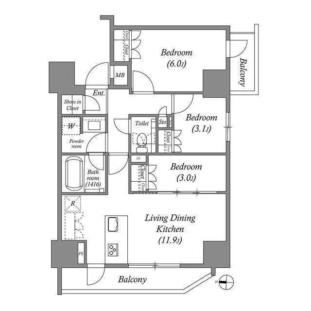
3LDK
種別 マンション
専有面積 55.26㎡
おすすめ
ポイント
ACP Residence 錦糸町:錦糸町駅にも近くて便利。セキュリティ面は、TVインターホン・オー
| 築年月 | 2026年2月 |
|---|---|
| 構造 | 鉄筋コンクリート造 |
| 所在階 | 13階建ての11階 |
| 向き | - |
| バルコニー面積 | - |
| 駐車場 | なし |
| 入居可能日 | 2026年2月28日予定 |
| 賃貸借の種類 | 普通賃貸借 |
| 契約期間 | 2年 |
| 共益費・管理費 | 20,000円 |
| 敷金 | - |
| 礼金 | - |
| 保証金 | - |
| 償却金 | - |
| 更新料 | 291,000円 |
| 保証料等 | 要加入 |
| 保証会社補足 | 株式会社エポスカード(東京) ROOM iD(個人)保証料:保証人有30% 無40% (法人)40% |
| 取引態様 | 媒介 |
| 情報更新日 | 2026年2月20日 |
| 次回更新予定日 | 2026年2月22日 |
設備・特記
《設備》BSアンテナ/CSアンテナ/オートロック/TVモニター付きインターホン/防犯カメラ/エアコン/バス・トイレ別/浴室乾燥機/洗髪洗面化粧台/シャワー/フローリング/バルコニー/室内洗濯機置場/下駄箱/クローゼット/照明器具/システムキッチン/ガスコンロ(3口)/エレベータ/宅配ボックス/駐輪場/都市ガス/バイク置場
《物件の特徴》新築/二人入居可
《その他一時金》退去時RC代:66865円
《その他月額費用》-
備考
《その他》こだわりで選びたい方におすすめ。墨田区エリアで住まいをお探しなら「ACP Residence 錦糸町」。雨で外に干せない日でも部屋干し特有の臭いを防げる、浴室乾燥機付きの物件です。新築の物件のご紹介です。駐輪場付きの物件です。これから錦糸町周辺で暮らすなら、当社にお問い合わせください。03-5909-5601またはinfo@sk-com.jpよりご連絡お待ちしています。
※現状と異なる場合は、現状を優先させていただきます。取引態様の欄に「媒介」と表示された物件は「仲介物件」です。ご成約の際には仲介手数料を申し受けます。