12.5万円
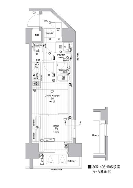
1DK
種別 マンション
専有面積 30.53㎡
おすすめ
ポイント
こだわりで選びたい方におすすめ。江東区エリアで住まいをお探しなら「PREMIUM CUBE 亀戸」。
| 築年月 | 2022年11月 |
|---|---|
| 構造 | 鉄筋コンクリート造 |
| 所在階 | 15階建ての4階 |
| 向き | 東 |
| バルコニー面積 | 3.78㎡ |
| 駐車場 | なし |
| 入居可能日 | 2026年4月30日予定 |
| 賃貸借の種類 | 普通賃貸借 |
| 契約期間 | 2年 |
| 共益費・管理費 | 15,000円 |
| 敷金 | 12.5万円 |
| 礼金 | 125,000円 |
| 保証金 | - |
| 償却金 | - |
| 更新料 | 更新前賃料:1.5ヶ月 |
| 保証料等 | 要加入 |
| 保証会社補足 | - |
| 取引態様 | 媒介 |
| 情報更新日 | 2026年2月22日 |
| 次回更新予定日 | 2026年2月28日 |
設備・特記
《設備》バス・トイレ別/浴室乾燥機/温水洗浄便座/エアコン/オートロック/インターネット対応/BSアンテナ/エレベータ/宅配ボックス/駐輪場/都市ガス/ガスコンロ(2口)/フローリング/バルコニー/室内洗濯機置場
《物件の特徴》ペット相談可
《その他一時金》入居中サポート:21450円 / 室内抗菌処理代:17600円 / 事務手数料:11000円
《その他月額費用》-
備考
《その他》オートロック機能が付いているのでドアの前まで知らない人が入って来づらくなります。浴室乾燥機付き物件ならば、日中でなくても洗濯物を干せるので日中は忙しいという人にもおすすめです。快適に生活する上で欠かせないエアコンが設置されているマンションです。江東区に住みたい方は、お気軽にご連絡下さい。info@sk-com.jpまたは03-5909-5601からお問い合わせをお待ちしております。
※現状と異なる場合は、現状を優先させていただきます。取引態様の欄に「媒介」と表示された物件は「仲介物件」です。ご成約の際には仲介手数料を申し受けます。