15.4万円
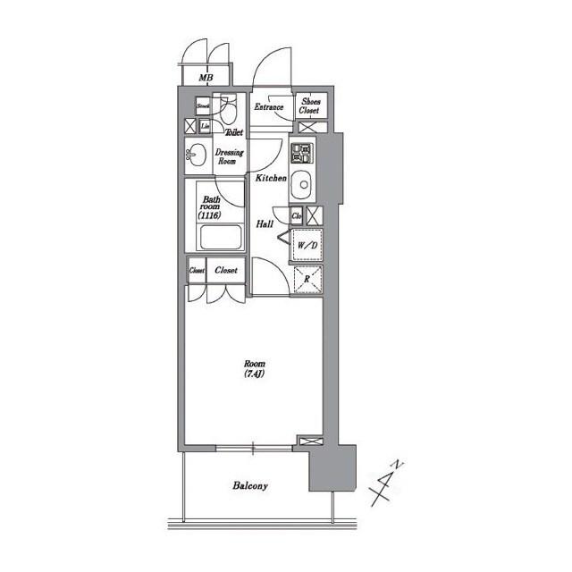
1K
種別 マンション
専有面積 27.67㎡
おすすめ
ポイント
室内設備は洗面所独立・浴室乾燥機などが揃っているので、快適に過ごしやすいお部屋になります。セキュリテ
| 築年月 | 2005年12月 |
|---|---|
| 構造 | 鉄筋コンクリート造 |
| 所在階 | 地下1階・地上22階建ての5階 |
| 向き | 南東 |
| バルコニー面積 | - |
| 駐車場 | なし |
| 入居可能日 | 2026年4月30日予定 |
| 賃貸借の種類 | 普通賃貸借 |
| 契約期間 | 2年 |
| 共益費・管理費 | 15,000円 |
| 敷金 | - |
| 礼金 | - |
| 保証金 | - |
| 償却金 | - |
| 更新料 | 154,000円 |
| 保証料等 | 要加入 |
| 保証会社補足 | 株式会社エポスカード(東京) ROOM iD(個人)保証料:保証人有30% 無40% (法人)40% |
| 取引態様 | 媒介 |
| 情報更新日 | 2026年3月16日 |
| 次回更新予定日 | 2026年3月22日 |
設備・特記
《設備》フローリング/バルコニー/室内洗濯機置場/下駄箱/クローゼット/システムキッチン/ガスコンロ(2口)/エレベータ/宅配ボックス/駐輪場/バイク置場/CATV/オートロック/TVモニター付きインターホン/防犯カメラ/エアコン/バス・トイレ別/浴室乾燥機/追い焚き風呂/独立洗面台/シャワー
《その他一時金》カギ費用:42900円 / 退去時RC代:38500円
《その他月額費用》-
備考
《その他》「レキシントンスクエア白金高輪」:港区エリアの新居にピッタリ。荷物を注文する時に時間を気にしなくてよくなる宅配ボックスが共用部に付いています。収納はシューズボックス・クロゼットなど豊富なので、衣類や履き物の整理がしやすく便利です。港区で快適な住まいをお探しなら、地域特化型の当社にお任せ下さい。ご要望やご不明な点はinfo@sk-com.jpにてお申し付け下さい。
※現状と異なる場合は、現状を優先させていただきます。取引態様の欄に「媒介」と表示された物件は「仲介物件」です。ご成約の際には仲介手数料を申し受けます。