11.5万円
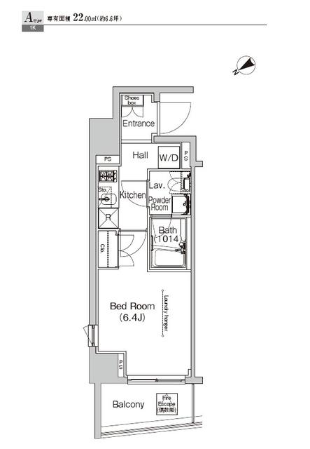
1K
種別 マンション
専有面積 22.00㎡
おすすめ
ポイント
新着情報:プラウドフラット門前仲町の空室情報ならコチラ。収納はシューズボックス・クロゼット・全居室収
| 築年月 | 2009年10月 |
|---|---|
| 構造 | 鉄骨鉄筋コンクリート造 |
| 所在階 | 12階建ての2階 |
| 向き | 北西 |
| バルコニー面積 | - |
| 駐車場 | 空きなし |
| 入居可能日 | 2026年5月10日予定 |
| 賃貸借の種類 | 普通賃貸借 |
| 契約期間 | 2年 |
| 共益費・管理費 | 7,000円 |
| 敷金 | 11.5万円 |
| 礼金 | 115,000円 |
| 保証金 | - |
| 償却金 | - |
| 更新料 | 更新前賃料:1ヶ月 |
| 保証料等 | 要加入 |
| 保証会社補足 | 【B】賃料総額40%/月額800円【GTN】賃料総額50%/月額2,000円 詳細:個人・法人 利用可能 / 最低保証料:15,000円 / 月額800円 【B1】※ベーシックプラン 【GP80】※ |
| 取引態様 | 媒介 |
| 情報更新日 | 2026年3月20日 |
| 次回更新予定日 | 2026年3月25日 |
設備・特記
《設備》オートロック/TVモニター付きインターホン/防犯カメラ/エアコン/バス・トイレ別/浴室乾燥機/独立洗面台/温水洗浄便座/シャワー/トイレ/フローリング/バルコニー/室内洗濯機置場/下駄箱/クローゼット/全居室収納/システムキッチン/ガスコンロ(2口)/角部屋/エレベータ/宅配ボックス/敷地内駐車場/駐輪場/都市ガス/バイク置場/公営水道/下水/CATV/CSアンテナ/光回線
《物件の特徴》ペット不可/楽器不可/事務所利用不可/2人入居不可
《その他一時金》鍵交換費用:36300円
《その他月額費用》-
備考
《その他》直接受け取れない荷物は宅配ボックスに届くので、日中外出する方や家でも手が離せないことが多い方におすすめです。収納はシューズボックス・クロゼット・全居室収納など豊富なので、衣類や履き物の整理がしやすく便利です。門前仲町周辺エリアのお住まいに関するご連絡は、03-5909-5601からお待ちしております。info@sk-com.jpからでもお問い合わせいただけます。
※現状と異なる場合は、現状を優先させていただきます。取引態様の欄に「媒介」と表示された物件は「仲介物件」です。ご成約の際には仲介手数料を申し受けます。