18.9万円
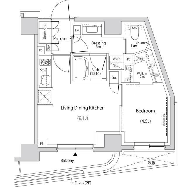
1LDK
種別 マンション
専有面積 37.10㎡
おすすめ
ポイント
ザ・パークハビオ文京目白台プレイス:護国寺駅にも近くて便利。共用部には宅配ボックスが付いているため、
| 築年月 | 2024年3月 |
|---|---|
| 構造 | 鉄筋コンクリート造 |
| 所在階 | 地下1階・地上10階建ての3階 |
| 向き | 南東 |
| バルコニー面積 | 4.74㎡ |
| 駐車場 | なし |
| 入居可能日 | 2026年4月30日予定 |
| 賃貸借の種類 | 普通賃貸借 |
| 契約期間 | 2年 |
| 共益費・管理費 | 15,000円 |
| 敷金 | 18.9万円 |
| 礼金 | - |
| 保証金 | - |
| 償却金 | - |
| 更新料 | 189,000円 |
| 保証料等 | 要加入 |
| 保証会社補足 | 初年度保証料:賃料等合計額の50% 2年目以降:1年毎1万円(個人) |
| 取引態様 | 媒介 |
| 情報更新日 | 2026年3月21日 |
| 次回更新予定日 | 2026年3月27日 |
設備・特記
《設備》フローリング/バルコニー/室内洗濯機置場/ウォークインクローゼット/ガスコンロ(2口)/エレベータ/宅配ボックス/キッズルーム/インターネット対応/オートロック/TVモニター付きインターホン/防犯カメラ/エアコン/バス・トイレ別/浴室乾燥機/追い焚き風呂/温水洗浄便座/シャワー
《物件の特徴》ペット相談可/ピアノ相談可/事務所使用可
《その他一時金》鍵交換費用:33000円
《その他月額費用》-
備考
《その他》雨の日など外に干せない時でも部屋干し特有の臭いを防げる、浴室乾燥機を設置しております。共用部には宅配ボックスが備え付けられているため、家で何時間も待機する必要がなくなります。文京区エリアへのお引っ越しが決まのであれば、当社スタッフが住まい探しをサポートいたします。お問い合わせは03-5909-5601またはinfo@sk-com.jpからどうぞ。
※現状と異なる場合は、現状を優先させていただきます。取引態様の欄に「媒介」と表示された物件は「仲介物件」です。ご成約の際には仲介手数料を申し受けます。