22.6万円
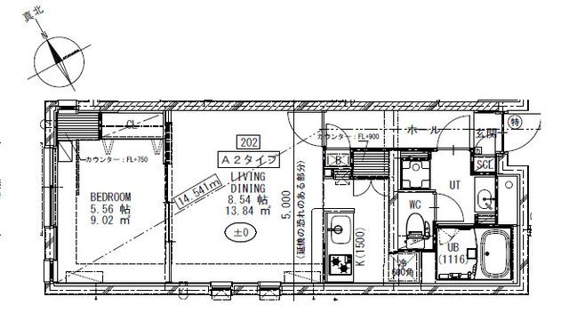
1LDK
種別 マンション
専有面積 40.57㎡
おすすめ
ポイント
新着情報:ザハウス祐天寺の空室情報ならコチラ。収納はシューズボックス・クロゼットなど豊富なので、広々
| 築年月 | 2024年1月 |
|---|---|
| 構造 | 鉄筋コンクリート造 |
| 所在階 | 4階建ての2階 |
| 向き | 西 |
| バルコニー面積 | - |
| 駐車場 | なし |
| 入居可能日 | 相談 |
| 賃貸借の種類 | 普通賃貸借 |
| 契約期間 | 2年 |
| 共益費・管理費 | 20,000円 |
| 敷金 | 22.6万円 |
| 礼金 | - |
| 保証金 | - |
| 償却金 | - |
| 更新料 | 更新前賃料:1ヶ月 |
| 保証料等 | 要加入 |
| 保証会社補足 | ※エポス ルームIDからの審査になります。 【ルームID】月額総賃料の50%/月次保証料、月額総賃料の1.5%/1年毎10,000円 【アーク賃貸保証】月額総賃料の40%/次年度以降10,000円※ |
| 取引態様 | 媒介 |
| 情報更新日 | 2026年3月25日 |
| 次回更新予定日 | 2026年3月30日 |
設備・特記
《設備》フローリング/室内洗濯機置場/下駄箱/クローゼット/バス・トイレ別/浴室乾燥機/独立洗面台/温水洗浄便座/トイレ/エアコン/オートロック/TVモニター付きインターホン/インターネット対応/インターネット無料/角部屋/宅配ボックス/都市ガス/公営水道/下水/システムキッチン/ガスコンロ(2口)
《物件の特徴》ペット相談可/楽器不可/事務所利用不可
《その他一時金》プレミアデスク(税込/2年):22000円 / 鍵交換費用:38500円
《その他月額費用》-
備考
《その他》共用部には宅配ボックスが付いているため、好きなタイミングで荷物を受け取ることができます。セキュリティ面は、オートロック・TVインターホンなど充実しているので安心して生活できます。室内設備は洗面所独立・浴室乾燥機などが揃っており、とても充実しています。通勤時間を短縮したいなら、祐天寺周辺でお部屋探しをするのも手です。数多くの賃貸情報がありますので、この機会にお引っ越しをご検討ください。
※現状と異なる場合は、現状を優先させていただきます。取引態様の欄に「媒介」と表示された物件は「仲介物件」です。ご成約の際には仲介手数料を申し受けます。