15.2万円
1K
種別 マンション
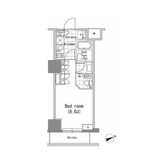
専有面積 25.27㎡
おすすめ
ポイント
浴室乾燥機を備え付けているので、浴室や洗濯物からスピーディーに湿気を除去してカビを防げます。セキュリ
| 築年月 | 2013年9月 |
|---|---|
| 構造 | 鉄筋コンクリート造 |
| 所在階 | 15階建ての2階 |
| 向き | 南東 |
| バルコニー面積 | 3.52㎡ |
| 駐車場 | なし |
| 入居可能日 | 2026年4月10日予定 |
| 賃貸借の種類 | 普通賃貸借 |
| 契約期間 | 2年 |
| 共益費・管理費 | 10,000円 |
| 敷金 | 15.2万円 |
| 礼金 | 152,000円 |
| 保証金 | - |
| 償却金 | - |
| 更新料 | 152,000円 |
| 保証料等 | 要加入 |
| 保証会社補足 | 初年度保証料:賃料等合計額の50%(最低保証料3万円)毎月:賃料等合計額の1.3% |
| 取引態様 | 媒介 |
| 情報更新日 | 2026年3月26日 |
| 次回更新予定日 | 2026年3月31日 |
設備・特記
《設備》フローリング/バルコニー/室内洗濯機置場/照明器具/バス・トイレ別/浴室乾燥機/追い焚き風呂/温水洗浄便座/シャワー/エアコン/オートロック/TVモニター付きインターホン/防犯カメラ/エレベータ/宅配ボックス/キッズルーム/ガスコンロ(2口)
《物件の特徴》ペット相談可/ピアノ相談可/事務所使用可
《その他一時金》鍵交換費用:33000円
《その他月額費用》-
備考
《その他》こだわりポイント満載のパークハビオ新橋。セキュリティ面は、オートロック・TVインターホンなどを設置しているので安全面でも優れております。駅まで5分と、駅近でアクセスも良好な物件です。港区エリアの賃貸情報はピタットハウス新宿西口店にお問い合わせください。ご連絡はお電話03-5909-5601、Eメールinfo@sk-com.jpまで。
※現状と異なる場合は、現状を優先させていただきます。取引態様の欄に「媒介」と表示された物件は「仲介物件」です。ご成約の際には仲介手数料を申し受けます。