16.3万円
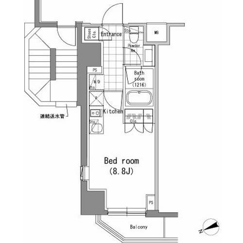
1R
種別 マンション
専有面積 25.03㎡
おすすめ
ポイント
こちらは浴室の除湿ができる浴室乾燥機がおすすめのマンションです。セキュリティ面は、TVインターホン・
| 築年月 | 2013年9月 |
|---|---|
| 構造 | 鉄筋コンクリート造 |
| 所在階 | 15階建ての9階 |
| 向き | 北西 |
| バルコニー面積 | 2.92㎡ |
| 駐車場 | なし |
| 入居可能日 | 2026年4月20日予定 |
| 賃貸借の種類 | 普通賃貸借 |
| 契約期間 | 2年 |
| 共益費・管理費 | 10,000円 |
| 敷金 | 16.3万円 |
| 礼金 | 163,000円 |
| 保証金 | - |
| 償却金 | - |
| 更新料 | 163,000円 |
| 保証料等 | 要加入 |
| 保証会社補足 | 初年度保証料:賃料等合計額の50%(最低保証料3万円)毎月:賃料等合計額の1.3% |
| 取引態様 | 媒介 |
| 情報更新日 | 2026年3月26日 |
| 次回更新予定日 | 2026年4月1日 |
設備・特記
《設備》ガスコンロ(2口)/角部屋/エレベータ/宅配ボックス/キッズルーム/インターネット対応/オートロック/TVモニター付きインターホン/防犯カメラ/エアコン/バス・トイレ別/浴室乾燥機/追い焚き風呂/温水洗浄便座/シャワー/フローリング/バルコニー/室内洗濯機置場/照明器具
《物件の特徴》ペット相談可/ピアノ相談可/事務所使用可
《その他一時金》鍵交換費用:33000円
《その他月額費用》-
備考
《その他》こだわりポイント満載のパークハビオ新橋。共用部には宅配ボックスが備え付けられているため、非対面での荷物の受け取りが可能です。自宅で演奏したい楽器などございましたら、ご相談ください。二口コンロが付いた物件です。当社はお客様に満足して頂けるよう、全力で住まい探しをサポートいたします。特に御成門付近をお探しの方は、<info@sk-com.jp>までお問い合わせください。
※現状と異なる場合は、現状を優先させていただきます。取引態様の欄に「媒介」と表示された物件は「仲介物件」です。ご成約の際には仲介手数料を申し受けます。