35万円
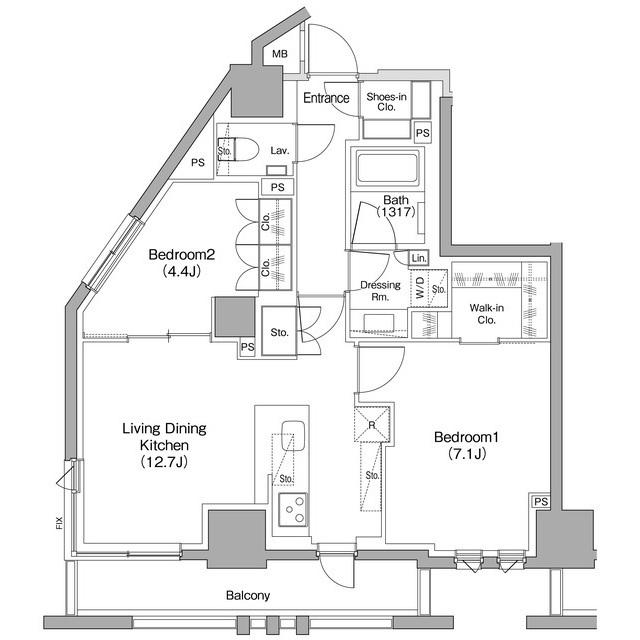
2LDK
種別 マンション
専有面積 59.94㎡
おすすめ
ポイント
ぜひ一度見ていただきたい、「ザ・パークハビオ碑文谷」です。セキュリティ面は、オートロック・TVインタ
| 築年月 | 2020年2月 |
|---|---|
| 構造 | 鉄筋コンクリート造 |
| 所在階 | 10階建ての9階 |
| 向き | 北 |
| バルコニー面積 | 7.40㎡ |
| 駐車場 | 有り 月額44,000円 |
| 入居可能日 | 2026年3月31日予定 |
| 賃貸借の種類 | 普通賃貸借 |
| 契約期間 | 2年 |
| 共益費・管理費 | 15,000円 |
| 敷金 | 35万円 |
| 礼金 | 350,000円 |
| 保証金 | - |
| 償却金 | - |
| 更新料 | 350,000円 |
| 保証料等 | 要加入 |
| 保証会社補足 | 初年度保証料:賃料等合計額の50%(最低保証料2万円)2年目以降:1年毎1万円 |
| 取引態様 | 媒介 |
| 情報更新日 | 2026年3月26日 |
| 次回更新予定日 | 2026年4月1日 |
設備・特記
《設備》エアコン/バス・トイレ別/浴室乾燥機/追い焚き風呂/温水洗浄便座/シャワー/フローリング/バルコニー/室内洗濯機置場/ウォークインクローゼット/シューズIC/ガスコンロ(3口)/角部屋/エレベータ/宅配ボックス/敷地内駐車場/キッズルーム/インターネット対応/BSアンテナ/CSアンテナ/オートロック/TVモニター付きインターホン/防犯カメラ
《物件の特徴》ペット相談可/ピアノ相談可/事務所使用可
《その他一時金》鍵交換費用:33000円
《その他月額費用》-
備考
《その他》共用部には宅配ボックスを備え付けているため、対面で荷物を受け取る必要がありません。収納はウォークインクロゼット・シューズWICなど豊富なので、衣類や履き物の整理がしやすく便利です。浴室乾燥機を設置しているので、外に干したくない日でも効率よくカラッと乾かせます。住まいを探すにあたって、目黒区へお引っ越しを検討しているのであれば、ピタットハウス新宿西口店にお任せください。
※現状と異なる場合は、現状を優先させていただきます。取引態様の欄に「媒介」と表示された物件は「仲介物件」です。ご成約の際には仲介手数料を申し受けます。