20.3万円
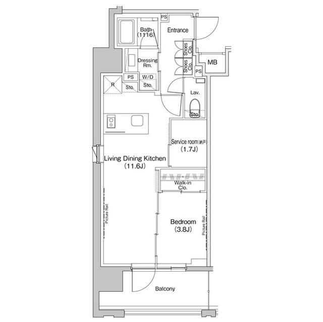
1SLDK
種別 マンション
専有面積 41.54㎡
おすすめ
ポイント
知らない来訪者が玄関前まで来ることが減るので防犯対策につながるオートロック機能があります。荷物を受け
| 築年月 | 2023年8月 |
|---|---|
| 構造 | 鉄筋コンクリート造 |
| 所在階 | 14階建ての11階 |
| 向き | 南 |
| バルコニー面積 | 7.40㎡ |
| 駐車場 | なし |
| 入居可能日 | 2026年5月31日予定 |
| 賃貸借の種類 | 普通賃貸借 |
| 契約期間 | 2年 |
| 共益費・管理費 | 15,000円 |
| 敷金 | 20.3万円 |
| 礼金 | 203,000円 |
| 保証金 | - |
| 償却金 | - |
| 更新料 | 203,000円 |
| 保証料等 | 要加入 |
| 保証会社補足 | 初年度保証料:賃料等合計額の50%(最低保証料2万円)2年目以降:1年毎1万円 |
| 取引態様 | 媒介 |
| 情報更新日 | 2026年3月27日 |
| 次回更新予定日 | 2026年4月1日 |
設備・特記
《設備》エレベータ/宅配ボックス/キッズルーム/オートロック/防犯カメラ
《物件の特徴》ペット相談可/ピアノ相談可
《その他一時金》鍵交換費用:33000円
《その他月額費用》-
備考
《その他》こだわりポイント満載のザ・パークハビオ上北沢。エントランス・玄関と2つのロックで守られているので防犯対策につながるオートロック機能が付いております。楽器の相談にも応じます。お気軽にご相談ください。ピタットハウス新宿西口店には杉並区エリアの賃貸情報が豊富にございます。ぜひお気軽に03-5909-5601またはinfo@sk-com.jpへお問い合わせください。
※現状と異なる場合は、現状を優先させていただきます。取引態様の欄に「媒介」と表示された物件は「仲介物件」です。ご成約の際には仲介手数料を申し受けます。