18.4万円
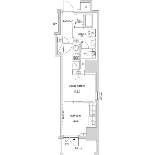
1DK
種別 マンション
専有面積 35.84㎡
おすすめ
ポイント
「ザ・パークハビオ新中野」のここがイチオシ。建物のエントランスには防犯対策として優れているオートロッ
| 築年月 | 2024年2月 |
|---|---|
| 構造 | 重量鉄骨造 |
| 所在階 | 15階建ての15階 |
| 向き | 北 |
| バルコニー面積 | 4.46㎡ |
| 駐車場 | 有り 月額38,500円 |
| 入居可能日 | 2026年5月31日予定 |
| 賃貸借の種類 | 普通賃貸借 |
| 契約期間 | 2年 |
| 共益費・管理費 | 15,000円 |
| 敷金 | 18.4万円 |
| 礼金 | 184,000円 |
| 保証金 | - |
| 償却金 | - |
| 更新料 | 184,000円 |
| 保証料等 | 要加入 |
| 保証会社補足 | 初年度保証料:賃料等合計額の50% 2年目以降:1年毎1万円(個人) |
| 取引態様 | 媒介 |
| 情報更新日 | 2026年3月29日 |
| 次回更新予定日 | 2026年4月1日 |
設備・特記
《設備》オートロック/防犯カメラ/BSアンテナ/CSアンテナ/エレベータ/宅配ボックス/敷地内駐車場/キッズルーム
《物件の特徴》ペット相談可/ピアノ相談可
《その他一時金》鍵交換費用:33000円
《その他月額費用》-
備考
《その他》こだわりで選びたい方におすすめ。中野区エリアで住まいをお探しなら「ザ・パークハビオ新中野」。地上15階建てでニーズの高い物件です。新中野周辺で賃貸をお探しでしたら、中野区の情報豊富な当社にお任せください。Eメールでのお問い合わせはお気軽にinfo@sk-com.jpへどうぞ。知識豊富なスタッフがご連絡いたします。
※現状と異なる場合は、現状を優先させていただきます。取引態様の欄に「媒介」と表示された物件は「仲介物件」です。ご成約の際には仲介手数料を申し受けます。