16.1万円
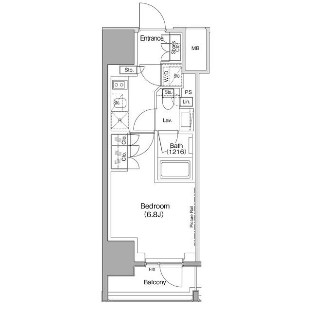
1K
種別 マンション
専有面積 25.28㎡
おすすめ
ポイント
セキュリティ面は、TVインターホン・オートロックなどを設置しているので安全面でも優れております。浴室
| 築年月 | 2021年10月 |
|---|---|
| 構造 | 鉄筋コンクリート造 |
| 所在階 | 地下1階・地上14階建ての8階 |
| 向き | 東 |
| バルコニー面積 | 3.78㎡ |
| 駐車場 | 有り 月額66,000円 |
| 入居可能日 | 2026年5月31日予定 |
| 賃貸借の種類 | 普通賃貸借 |
| 契約期間 | 2年 |
| 共益費・管理費 | 15,000円 |
| 敷金 | 16.1万円 |
| 礼金 | 161,000円 |
| 保証金 | - |
| 償却金 | - |
| 更新料 | 161,000円 |
| 保証料等 | 要加入 |
| 保証会社補足 | SBIギャランティ 初年度保証料:賃料等合計額の40%(最低保証料2万円)2年目以降:1年毎8千円 |
| 取引態様 | 媒介 |
| 情報更新日 | 2026年3月29日 |
| 次回更新予定日 | 2026年4月3日 |
設備・特記
《設備》オートロック/TVモニター付きインターホン/防犯カメラ/エアコン/バス・トイレ別/浴室乾燥機/追い焚き風呂/温水洗浄便座/シャワー/フローリング/バルコニー/室内洗濯機置場/ガスコンロ(2口)/エレベータ/宅配ボックス/敷地内駐車場/キッズルーム/インターネット対応/BSアンテナ/CSアンテナ
《物件の特徴》ペット相談可/ピアノ相談可/事務所使用可
《その他一時金》鍵交換費用:33000円
《その他月額費用》-
備考
《その他》こだわりで選びたい方におすすめ。港区エリアで住まいをお探しなら「ザ・パークハビオ麻布十番」。浴室乾燥機を備え付けているので、浴室を暖房機能で温めておくことで急激な温度変化によるヒートショックの予防もできます。港区エリアの賃貸情報はピタットハウス新宿西口店にお問い合わせください。ご連絡はお電話03-5909-5601、Eメールinfo@sk-com.jpまで。
※現状と異なる場合は、現状を優先させていただきます。取引態様の欄に「媒介」と表示された物件は「仲介物件」です。ご成約の際には仲介手数料を申し受けます。