29.3万円
1LDK
種別 マンション
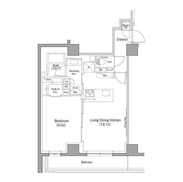
専有面積 49.39㎡
おすすめ
ポイント
セキュリティ面は、TVインターホン・オートロックなどを設置しているので安全面でも優れております。こ
| 築年月 | 2019年1月 |
|---|---|
| 構造 | 鉄筋コンクリート造 |
| 所在階 | 7階建ての3階 |
| 向き | 西 |
| バルコニー面積 | 6.96㎡ |
| 駐車場 | なし |
| 入居可能日 | 2026年3月31日予定 |
| 賃貸借の種類 | 普通賃貸借 |
| 契約期間 | 2年 |
| 共益費・管理費 | 15,000円 |
| 敷金 | 29.3万円 |
| 礼金 | 293,000円 |
| 保証金 | - |
| 償却金 | - |
| 更新料 | 293,000円 |
| 保証料等 | 要加入 |
| 保証会社補足 | 初年度保証料:賃料等合計額の50%(最低保証料2万円)2年目以降:1年毎1万円 |
| 取引態様 | 媒介 |
| 情報更新日 | 2026年3月28日 |
| 次回更新予定日 | 2026年4月3日 |
設備・特記
《設備》ガスコンロ(3口)/フローリング/バルコニー/室内洗濯機置場/ウォークインクローゼット/バス・トイレ別/浴室乾燥機/追い焚き風呂/温水洗浄便座/シャワー/エアコン/オートロック/TVモニター付きインターホン/防犯カメラ/インターネット対応/BSアンテナ/エレベータ/宅配ボックス/キッズルーム
《物件の特徴》ペット相談可/ピアノ相談可/事務所使用可
《その他一時金》鍵交換費用:33000円
《その他月額費用》-
備考
《その他》ぜひ一度見ていただきたい、「ザ・パークハビオ目黒フォート」です。留守中に注文した商品が届くので、配送時間を気にせず注文ができる宅配ボックスを共用部に備えております。こちらはエレベーター付き物件です。ネットの回線を繋げているのでパソコンが使える生活。当社は、多種多様な賃貸情報を取り扱っております。スタッフ一同、快適な住まいをご提供いただけるよう、全力で努めてまいりますので、ぜひ当社にお任せ下さい。
※現状と異なる場合は、現状を優先させていただきます。取引態様の欄に「媒介」と表示された物件は「仲介物件」です。ご成約の際には仲介手数料を申し受けます。