13.7万円
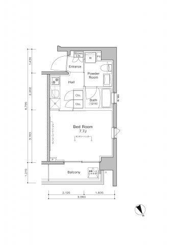
1K
種別 マンション
専有面積 25.20㎡
おすすめ
ポイント
プラウドフラット浅草橋:浅草橋駅にも近くて便利。室内設備は洗面化粧台・浴室乾燥機などが揃っており、
| 築年月 | 2018年7月 |
|---|---|
| 構造 | 鉄筋コンクリート造 |
| 所在階 | 10階建ての8階 |
| 向き | 北 |
| バルコニー面積 | - |
| 駐車場 | 空きなし |
| 入居可能日 | 2026年4月30日予定 |
| 賃貸借の種類 | 普通賃貸借 |
| 契約期間 | 2年 |
| 共益費・管理費 | 8,000円 |
| 敷金 | 13.7万円 |
| 礼金 | 137,000円 |
| 保証金 | - |
| 償却金 | - |
| 更新料 | 更新前賃料:1ヶ月 |
| 保証料等 | 要加入 |
| 保証会社補足 | 【B】賃料総額40%/月額800円【GTN】賃料総額50%/月額2,000円 詳細:個人・法人 利用可能 / 最低保証料:15,000円 / 月額800円 【B1】※ベーシックプラン 【GP80】※ |
| 取引態様 | 媒介 |
| 情報更新日 | 2026年4月2日 |
| 次回更新予定日 | 2026年4月8日 |
設備・特記
《設備》オートロック/TVモニター付きインターホン/防犯カメラ/光回線/角部屋/エレベータ/宅配ボックス/敷地内駐車場/駐輪場/都市ガス/バイク置場/公営水道/下水/システムキッチン/ガスコンロ(2口)/フローリング/バルコニー/室内洗濯機置場/下駄箱/クローゼット/バス・トイレ別/浴室乾燥機/温水洗浄便座/シャワー/トイレ/エアコン
《物件の特徴》ペット相談可/楽器不可/事務所利用不可/2人入居不可
《その他一時金》鍵交換費用:36300円
《その他月額費用》-
備考
《その他》荷物を直接受け取れないときに、宅配ボックスがあれば配達時間を気にすることなく、時間を有効利用することができます。セキュリティ面は、TVインターホン・オートロックなど充実しているので、防犯対策もばっちりです。台東区での新生活を始めるなら、ピタットハウス新宿西口店が住まい探しのお手伝いをいたします。ご要望やこだわりはinfo@sk-com.jpよりお待ちしております。
※現状と異なる場合は、現状を優先させていただきます。取引態様の欄に「媒介」と表示された物件は「仲介物件」です。ご成約の際には仲介手数料を申し受けます。