29.2万円
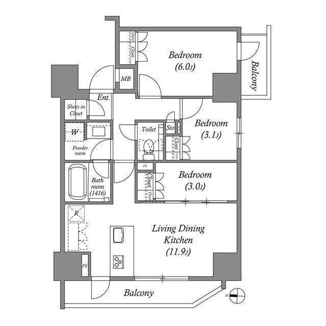
3LDK
種別 マンション
専有面積 55.26㎡
おすすめ
ポイント
墨田区エリアでの住まいなら、住み心地も快適な「ACP Residence 錦糸町」はいかがでしょうか
| 築年月 | 2026年1月 |
|---|---|
| 構造 | 鉄筋コンクリート造 |
| 所在階 | 13階建ての12階 |
| 向き | - |
| バルコニー面積 | - |
| 駐車場 | なし |
| 入居可能日 | 相談 |
| 賃貸借の種類 | 普通賃貸借 |
| 契約期間 | 2年 |
| 共益費・管理費 | 20,000円 |
| 敷金 | - |
| 礼金 | - |
| 保証金 | - |
| 償却金 | - |
| 更新料 | 292,000円 |
| 保証料等 | 要加入 |
| 保証会社補足 | 株式会社エポスカード(東京) ROOM iD(個人)保証料:保証人有30% 無40% (法人)40% |
| 取引態様 | 媒介 |
| 情報更新日 | 2026年4月3日 |
| 次回更新予定日 | 2026年4月8日 |
設備・特記
《設備》オートロック/TVモニター付きインターホン/防犯カメラ/BSアンテナ/CSアンテナ/エレベータ/宅配ボックス/駐輪場/都市ガス/バイク置場/システムキッチン/ガスコンロ(3口)/フローリング/バルコニー/室内洗濯機置場/下駄箱/クローゼット/照明器具/バス・トイレ別/浴室乾燥機/洗髪洗面化粧台/シャワー/エアコン
《物件の特徴》新築/二人入居可
《その他一時金》退去時RC代:66865円
《その他月額費用》-
備考
《その他》共用部には宅配ボックスを設置しているため、対面で荷物を受け取る必要がなくなります。収納はシューズボックス・クロゼットなどが備え付けられているので、衣類や日用品の収納に重宝します。セキュリティ面は、オートロック・TVインターホンなど充実しているので、防犯対策もばっちりです。お部屋探しの時の不安や疑問を知識の豊富なスタッフが解消します。墨田区や錦糸町付近のことなら当社へご連絡下さい。
※現状と異なる場合は、現状を優先させていただきます。取引態様の欄に「媒介」と表示された物件は「仲介物件」です。ご成約の際には仲介手数料を申し受けます。