14.9万円
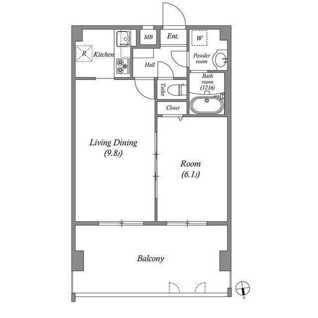
1LDK
種別 マンション
専有面積 41.18㎡
おすすめ
ポイント
「ペアパレス六町環七北通り」のここがイチオシ。エントランスにはオートロック機能が付いているので、建物
| 築年月 | 2026年1月 |
|---|---|
| 構造 | 鉄筋コンクリート造 |
| 所在階 | 7階建ての5階 |
| 向き | - |
| バルコニー面積 | - |
| 駐車場 | なし |
| 入居可能日 | 相談 |
| 賃貸借の種類 | 普通賃貸借 |
| 契約期間 | 2年 |
| 共益費・管理費 | 10,000円 |
| 敷金 | - |
| 礼金 | - |
| 保証金 | - |
| 償却金 | - |
| 更新料 | 149,000円 |
| 保証料等 | 要加入 |
| 保証会社補足 | 株式会社エポスカード(東京) ROOM iD(個人)保証料:保証人有30% 無40% (法人)40% |
| 取引態様 | 媒介 |
| 情報更新日 | 2026年4月2日 |
| 次回更新予定日 | 2026年4月8日 |
設備・特記
《設備》オートロック/防犯カメラ/エアコン/バス・トイレ別/浴室乾燥機/洗髪洗面化粧台/シャワー/フローリング/バルコニー/室内洗濯機置場/下駄箱/クローゼット/照明器具/システムキッチン/ガスコンロ(3口)/エレベータ/宅配ボックス/駐輪場/都市ガス/バイク置場/BSアンテナ/CSアンテナ
《物件の特徴》新築/ペット相談可
《その他一時金》カギ代:33000円 / 退去時RC代:55000円
《その他月額費用》-
備考
《その他》「ペアパレス六町環七北通り」のここがイチオシ。収納はクロゼット・シューズボックスなどが備え付けられているので、衣類や日用品の収納に重宝します。広い部屋にお住みになりたい方は1LDKを検討してみてはいかがですか。ピタットハウス新宿西口店には、地域に詳しく経験豊富なスタッフが多数在籍しております。まずは03-5909-5601/info@sk-com.jpからご連絡下さい。
※現状と異なる場合は、現状を優先させていただきます。取引態様の欄に「媒介」と表示された物件は「仲介物件」です。ご成約の際には仲介手数料を申し受けます。