51.7万円
事務所
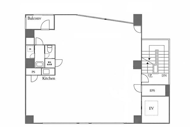
種別 事務所
専有面積 86.22㎡
おすすめ
ポイント
2駅利用できる場所にあり、行き先に合わせて使い分けができます。夏の暑さや冬の寒さにも耐えられるよう
| 築年月 | 1989年10月 |
|---|---|
| 構造 | 鉄骨鉄筋コンクリート造 |
| 所在階 | 8階建ての4階 |
| 向き | - |
| バルコニー面積 | - |
| 駐車場 | なし |
| 入居可能日 | 相談 |
| 賃貸借の種類 | 定期賃貸借 |
| 契約期間 | 3年 |
| 共益費・管理費 | 66,000円 |
| 敷金 | 376万円 |
| 礼金 | 517,000円 |
| 保証金 | - |
| 償却金 | - |
| 更新料 | - |
| 保証料等 | 要加入 |
| 保証会社補足 | - |
| 取引態様 | 媒介 |
| 情報更新日 | 2026年4月17日 |
| 次回更新予定日 | 2026年4月20日 |
設備・特記
《設備》インターネット対応/エアコン/独立洗面台/バスなし/トイレ/バルコニー/電気コンロ/エレベータ/耐震構造/公営水道/下水
《物件の特徴》定期借家権
《その他一時金》-
《その他月額費用》-
備考
《その他》水道代(6人程度想定)3600円(月額) お財布にも優しい、100円バスの路線がほど近くを走っています。室内の温度調整が簡単なエアコンが2台付いています。2駅利用可能な物件で移動範囲が広がります。電車移動の多い方に嬉しい駅から徒歩8分の物件です。とてもゆとりのある環境が魅力の月51.7万円の物件。
※現状と異なる場合は、現状を優先させていただきます。取引態様の欄に「媒介」と表示された物件は「仲介物件」です。ご成約の際には仲介手数料を申し受けます。