9万円
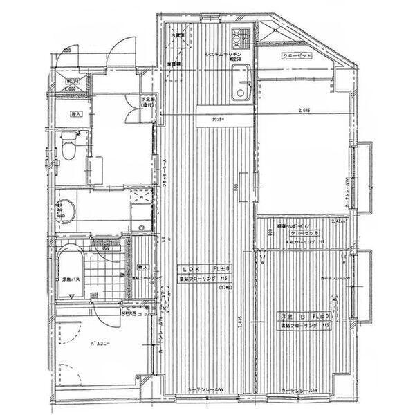
2LDK
種別 マンション
専有面積 72.58㎡
おすすめ
ポイント
閑静な住宅街にあるペット相談(小型犬のみ)可マンションです。
システムキッチンや追炊き機能など、最新設備を搭載しております。 徒歩圏内にコンビニやクリニックもあり便利です。
| 築年月 | 2004年8月 |
|---|---|
| 構造 | 鉄筋コンクリート造 |
| 所在階 | 地下1階・地上3階建ての2階 |
| 向き | 南東 |
| バルコニー面積 | - |
| 駐車場 | 有り 月額11,000円 |
| 入居可能日 | 相談 |
| 賃貸借の種類 | 普通賃貸借 |
| 契約期間 | 2年 |
| 共益費・管理費 | 6,000円 |
| 敷金 | - |
| 礼金 | - |
| 保証金 | 270,000円 |
| 償却金 | 9.0万円(解約時) |
| 更新料 | - |
| 保証料等 | 要加入(1年4800円) |
| 保証会社補足 | 初回50% 月額1,790円 (家財保険料含む) |
| 取引態様 | 媒介 |
| 情報更新日 | 2025年11月30日 |
| 次回更新予定日 | 2025年12月7日 |
設備・特記
《設備》バス・トイレ別/追い焚き風呂/洗髪洗面化粧台/独立洗面台/温水洗浄便座/シャワー/オートロック/TVモニター付きインターホン/インターネット対応/CATV/最上階/角部屋/エレベータ/敷地内駐車場/都市ガス/システムキッチン/IHコンロ/バルコニー/室内洗濯機置場/下駄箱
《物件の特徴》ペット相談可/礼金不要/初期費用カード決済可
《その他一時金》-
《その他月額費用》町内会費:300円/月 CATV 費用:550円/月
備考
《クレジットカード決済》初期費用クレジット決済可
《その他》○ 退去時 室内清掃費用 退去時 (税込) ルームクリーニング費(税込)={基本料金22,000円+(貸室面積㎡×660円/㎡)}
※現状と異なる場合は、現状を優先させていただきます。取引態様の欄に「媒介」と表示された物件は「仲介物件」です。ご成約の際には仲介手数料を申し受けます。