12.7万円
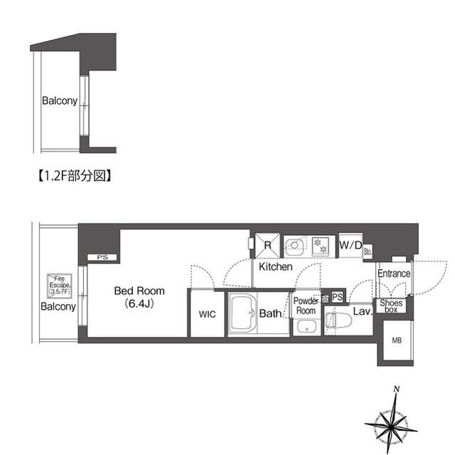
1K
種別 マンション
専有面積 25.62㎡
おすすめ
ポイント
■コワーキングスペースあり/駐輪場・ネット(ファミリーネットジャパン)無料
| 築年月 | 2022年1月 |
|---|---|
| 構造 | 鉄筋コンクリート造 |
| 所在階 | 11階建ての7階 |
| 向き | 西 |
| バルコニー面積 | - |
| 駐車場 | なし |
| 入居可能日 | 相談 |
| 賃貸借の種類 | 普通賃貸借 |
| 契約期間 | 2年 |
| 共益費・管理費 | 8,000円 |
| 敷金 | 12.7万円 |
| 礼金 | - |
| 保証金 | - |
| 償却金 | - |
| 更新料 | 更新後賃料:1ヶ月 |
| 保証料等 | 要加入(2年16550円) |
| 保証会社補足 | エポスカード(RP) 保証料:賃料等の50%(最低2万)、月額保証料:賃料等の1%(更新料無) |
| 取引態様 | 媒介 |
| 情報更新日 | 2025年10月26日 |
| 次回更新予定日 | 2025年11月1日 |
設備・特記
《設備》フローリング/室内洗濯機置場/ウォークインクロゼット/バス・トイレ別/独立洗面台/温水洗浄便座/エアコン/オートロック/TVモニター付きインターホン/防犯カメラ/インターネット無料/CATV/エレベータ/宅配ボックス/駐輪場/システムキッチン
《物件の特徴》ペット相談可
《その他一時金》鍵交換代:33000円 / 清掃費:38500円 / エアコン清掃費:11000円
《その他月額費用》-
備考
《その他》■礼金ゼロ!※1年以内解約時賃料1か月分違約金有 ■指定保証会社利用必須※一部法人契約除く敷金1カ月積み増し ■ペット飼育相談可能※敷金1ヵ月積み増し※小型犬1匹又は猫2匹迄
※現状と異なる場合は、現状を優先させていただきます。取引態様の欄に「媒介」と表示された物件は「仲介物件」です。ご成約の際には仲介手数料を申し受けます。