12.8万円
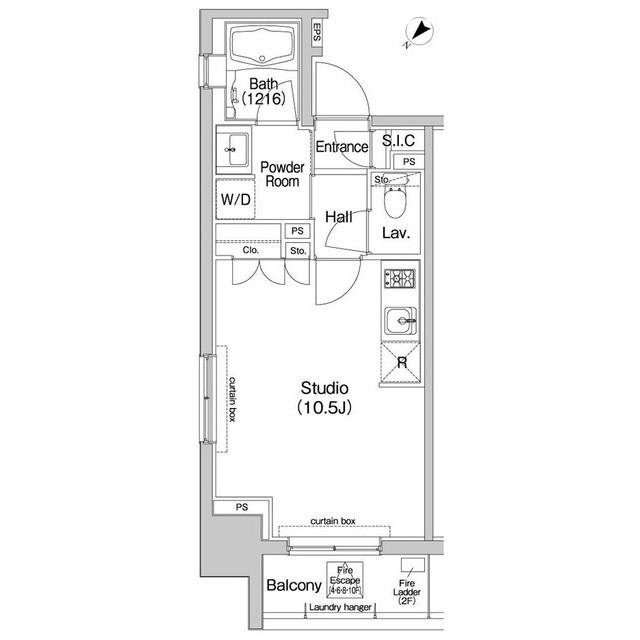
1R
種別 マンション
専有面積 29.24㎡
おすすめ
ポイント
■礼0ヶ月■1年以内解約時賃料1ヶ月違約金有
築年月 | 2009年11月 |
---|---|
構造 | 鉄筋コンクリート造 |
所在階 | 11階建ての8階 |
向き | 北西 |
バルコニー面積 | - |
駐車場 | 有り 月額38,500円 |
入居可能日 | 相談 |
賃貸借の種類 | 普通賃貸借 |
契約期間 | 2年 |
共益費・管理費 | 8,000円 |
敷金 | 12.8万円 |
礼金 | - |
保証金 | - |
償却金 | - |
更新料 | 更新後賃料:1ヶ月 |
保証料等 | 要加入(2年16550円) |
保証会社補足 | エポスカード(RP) 保証料:賃料等の50%(最低2万)、月額保証料:賃料等の1%(更新料無) |
取引態様 | 媒介 |
情報更新日 | 2025年10月22日 |
次回更新予定日 | 2025年10月28日 |
設備・特記
《設備》オートロック/防犯カメラ/エアコン/バス・トイレ別/浴室乾燥機/追い焚き風呂/システムキッチン/エレベータ/宅配ボックス/敷地内駐車場/駐輪場/常時ゴミ出し可能/インターネット無料
《物件の特徴》ペット相談可
《その他一時金》鍵交換代:33000円 / 清掃費:33000円 / エアコン清掃費:11000円
《その他月額費用》-
備考
《その他》■指定保証会社利用必須※一部法人契約除く・敷金1ヶ月積み増し ■ペット飼育時敷金1ヶ月積み増し(小型犬1匹or猫2匹まで)
※現状と異なる場合は、現状を優先させていただきます。取引態様の欄に「媒介」と表示された物件は「仲介物件」です。ご成約の際には仲介手数料を申し受けます。