5.9万円
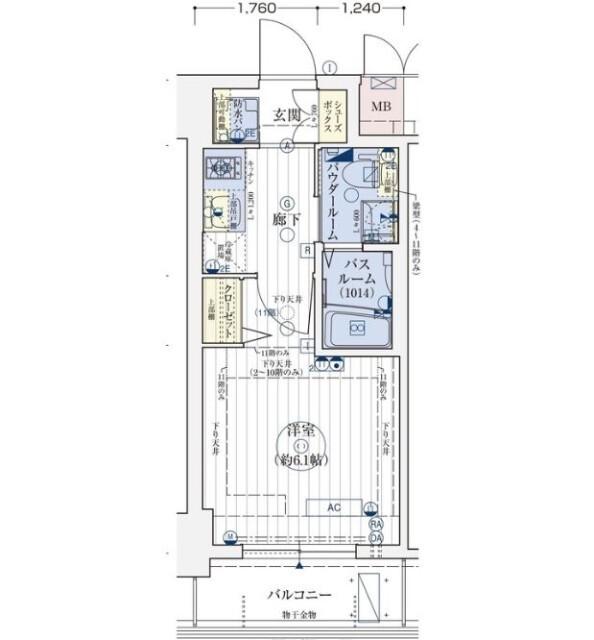
1K
種別 マンション
専有面積 20.40㎡
おすすめ
ポイント
【大阪市賃貸専門】■西区・港区・中央区を中心に活動中
京セラドームまでスグの立地です。近隣にはコンビニやイオンがあるのでお買い物やお食事も楽しめますね。自転車があれば行動範囲は難波まで広がるでしょう。転勤転職の方からのお問い合わせが多いです。
| 築年月 | 2015年8月 |
|---|---|
| 構造 | 鉄筋コンクリート造 |
| 所在階 | 11階建ての6階 |
| 向き | 南 |
| バルコニー面積 | - |
| 駐車場 | 有り 月額19,600円 |
| 入居可能日 | 2026年1月31日予定 |
| 賃貸借の種類 | 普通賃貸借 |
| 契約期間 | 1年 |
| 共益費・管理費 | 9,500円 |
| 敷金 | - |
| 礼金 | - |
| 保証金 | - |
| 償却金 | - |
| 更新料 | - |
| 保証料等 | 要加入(2年20000円) |
| 保証会社補足 | 初回50パーセント 月1.5パーセント |
| 取引態様 | 媒介 |
| 情報更新日 | 2026年1月15日 |
| 次回更新予定日 | 2026年1月22日 |
設備・特記
《設備》システムキッチン/ガスコンロ(2口)/フローリング/バリアフリー/バルコニー/室内洗濯機置場/下駄箱/クローゼット/南向き/全居室洋室/バス・トイレ別/浴室乾燥機/独立洗面台/温水洗浄便座/洗面化粧台/洗面所/トイレ/洗面台/脱衣所/洗面所にドア/エアコン/オートロック/TVモニター付きインターホン/モニタ付オートロック/ダブルロックドア/防犯カメラ/インターネット無料/高速ネット対応/分譲マンションタイプ/エレベータ/宅配ボックス/敷地内駐車場/駐輪場/駅まで平坦/都市ガス/敷地内ごみ置き場/常時ゴミ出し可能
《物件の特徴》オンライン内見可/オンライン相談可/IT重説対応物件/敷金不要/礼金不要/保証金不要/敷金・礼金不要/保証人不要/初期費用カード決済可
《その他一時金》鍵交換代:33000円 / エステム安心クラブ入会費:5500円
《その他月額費用》エステム安心クラブ:990円/月
備考
《更新事務手数料》:16,500円
《クレジットカード決済》初期費用クレジット決済可
《その他》中央区・西区・浪速区・港区・北区・福島区を中心に【大阪市内 全24区の専門スタッフ】が幅広く担当いたします。多種多様地域のお引越しのご相談をお承りしております。【初期費用見積】や【他社との比較の要望 他社掲載物件のご内覧】等 多数お承りしてますが、順番に確認・ご連絡いたしますのでお待ちくださいませ。ご返答にお時間が必要な場合がありますが、ご了承くださいませ。【TEL:06-6484-8368】
※現状と異なる場合は、現状を優先させていただきます。取引態様の欄に「媒介」と表示された物件は「仲介物件」です。ご成約の際には仲介手数料を申し受けます。