14.3万円
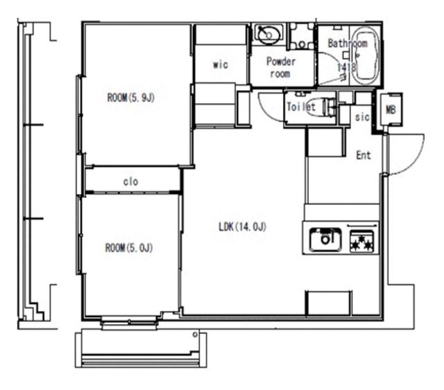
2LDK
種別 マンション
専有面積 55.62㎡
おすすめ
ポイント
ペット飼育可能(小型犬?大型犬、猫も飼育可能。多頭飼可)!
三郷中央駅まで徒歩2分で通勤・通学にも便利です♪ ペットと暮らせる2LDKのお部屋です♪
| 築年月 | 2020年7月 |
|---|---|
| 構造 | 鉄筋コンクリート造 |
| 所在階 | 9階建ての2階 |
| 向き | 南西 |
| バルコニー面積 | - |
| 駐車場 | なし |
| 入居可能日 | 相談 |
| 賃貸借の種類 | 普通賃貸借 |
| 契約期間 | 2年 |
| 共益費・管理費 | 10,000円 |
| 敷金 | ペット積み増し(14.3万円) 頭数により異なる |
| 礼金 | 143,000円 |
| 保証金 | 140,000円 |
| 償却金 | 14.0万円(解約時) |
| 更新料 | 更新後賃料:1.5ヶ月 |
| 保証料等 | 要加入(2年30000円) |
| 保証会社補足 | 初回総賃料の50%、月額500円+税、更新時10,000円/1年毎 |
| 取引態様 | 媒介 |
| 情報更新日 | 2025年11月28日 |
| 次回更新予定日 | 2025年12月5日 |
設備・特記
《設備》システムキッチン/カウンターキッチン/ガスコンロ(3口)/角部屋/エレベータ/宅配ボックス/都市ガス/インターネット対応/インターネット無料/オートロック/TVモニター付きインターホン/防犯カメラ/エアコン/バス・トイレ別/浴室乾燥機/追い焚き風呂/独立洗面台/温水洗浄便座/シャワー/フローリング/バルコニー/室内洗濯機置場/下駄箱/クローゼット/全居室収納/ウォークインクロゼット/全居室洋室/クロゼット2ヶ所
《物件の特徴》ペット相談可/保証会社利用可/オンライン内見可/オンライン相談可/IT重説対応物件/初期費用カード決済可
《その他一時金》鍵交換費用:22000円 / 24時間安心サービス:22000円
《その他月額費用》-
備考
《その他》【ペット飼育時追加敷金】 1匹飼育:犬(敷金+1ヶ月)、猫(敷金+1.5ヶ月) 2匹飼育:犬(敷金+2ヶ月)、猫(敷金+2.5ヶ月) 3匹飼育:犬(敷金+2.5ヶ月)、猫(敷金+2.5ヶ月) 三郷市、八潮市、吉川市、その他エリアのお部屋探しの際は、ご相談ください。新築、ペット飼育可能物件、初期費用を抑えたい方、いろいろご相談下さいませ。お問い合わせ、ご来店お待ちしております。
※現状と異なる場合は、現状を優先させていただきます。取引態様の欄に「媒介」と表示された物件は「仲介物件」です。ご成約の際には仲介手数料を申し受けます。