12万円
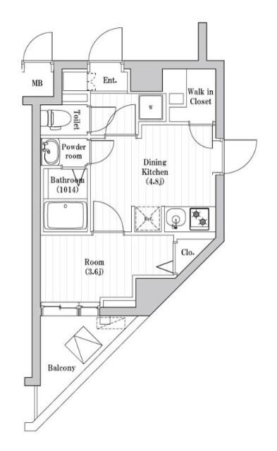
1DK
種別 マンション
専有面積 24.36㎡
おすすめ
ポイント
亀有駅近ペット可築浅RCマンション、ウォークインクローゼット
葛飾区、足立区、江戸川区と幅広く、お部屋探しのお手伝いが出来ます。お気軽にお問合せ下さい。お部屋探しはONEにお任せください。
| 築年月 | 2022年5月 |
|---|---|
| 構造 | 鉄筋コンクリート造 |
| 所在階 | 8階建ての4階 |
| 向き | 北 |
| バルコニー面積 | - |
| 駐車場 | なし |
| 入居可能日 | 2026年5月31日予定 |
| 賃貸借の種類 | 普通賃貸借 |
| 契約期間 | 2年 |
| 共益費・管理費 | 10,000円 |
| 敷金 | ペット積み増し(12万円) |
| 礼金 | - |
| 保証金 | - |
| 償却金 | - |
| 更新料 | 更新後賃料:1ヶ月 |
| 保証料等 | 要加入(2年23000円) |
| 保証会社補足 | 初回保証料:緊連30% 連保30% |
| 取引態様 | 媒介 |
| 情報更新日 | 2026年5月11日 |
| 次回更新予定日 | 2026年5月18日 |
設備・特記
《設備》システムキッチン/ガスコンロ(2口)/角部屋/エレベータ/宅配ボックス/駐輪場/都市ガス/バイク置場/インターネット無料/BSアンテナ/CSアンテナ/オートロック/TVモニター付きインターホン/モニタ付オートロック/エアコン/バス・トイレ別/浴室乾燥機/洗髪洗面化粧台/独立洗面台/温水洗浄便座/シャワー/浴室暖房/洗面化粧台/洗面所/トイレ/脱衣所/洗面所にドア/フローリング/バルコニー/室内洗濯機置場/下駄箱/クローゼット/ウォークインクローゼット/全居室フローリング/陽当り良好/24時間換気システム/全居室洋室/2面採光/通風良好
《物件の特徴》ペット相談可/保証会社利用可/フリーレント/二人入居相談/敷金不要/礼金不要/敷金・礼金不要/保証人不要/初期費用カード決済可
《その他一時金》入居中サポート:16500円 / 鍵費用:22000円
《その他月額費用》-
備考
《クレジットカード決済》初期費用クレジット決済可
《その他》ピタットハウス亀有店では、新築、築浅、リフォーム物件、貸家戸建、分譲賃貸、デザイナーズ、ペット可、など多数取り揃えております。カード決済も可能です。
※現状と異なる場合は、現状を優先させていただきます。取引態様の欄に「媒介」と表示された物件は「仲介物件」です。ご成約の際には仲介手数料を申し受けます。