21.5万円
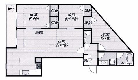
2SLDK
種別 マンション
専有面積 78.88㎡
おすすめ
ポイント
小型犬飼育可!インターネット使用料無料です♪
| 築年月 | 2022年9月 |
|---|---|
| 構造 | 鉄筋コンクリート造 |
| 所在階 | 3階建ての3階 |
| 向き | 南 |
| バルコニー面積 | - |
| 駐車場 | なし |
| 入居可能日 | 即可 |
| 賃貸借の種類 | 普通賃貸借 |
| 契約期間 | 2年 |
| 共益費・管理費 | 18,000円 |
| 敷金 | 21.5万円 |
| 礼金 | 215,000円 |
| 保証金 | - |
| 償却金 | - |
| 更新料 | - |
| 保証料等 | - |
| 保証会社補足 | 初回保証料:総賃料50% |
| 取引態様 | 媒介 |
| 情報更新日 | 2025年11月26日 |
| 次回更新予定日 | 2025年12月3日 |
設備・特記
《設備》フローリング/室内洗濯機置場/下駄箱/クローゼット/バス・トイレ別/浴室乾燥機/追い焚き風呂/洗髪洗面化粧台/温水洗浄便座/シャワー/エアコン/床暖房/オートロック/TVモニター付きインターホン/CATV/BSアンテナ/CSアンテナ/光回線/最上階/角部屋/エレベータ/宅配ボックス/都市ガス/システムキッチン/ガスコンロ(3口)
《物件の特徴》ペット相談可
《その他一時金》鍵交換費用:22000円
《その他月額費用》-
備考
《その他》小型犬飼育時、礼金1ヶ月要
※現状と異なる場合は、現状を優先させていただきます。取引態様の欄に「媒介」と表示された物件は「仲介物件」です。ご成約の際には仲介手数料を申し受けます。