20.7万円

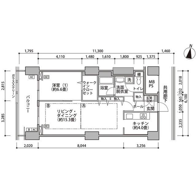
1LDK

種別 マンション

専有面積 66.06㎡

東雲キャナルコートCODAN16号棟(0310)

おすすめポイント

おすすめ
ポイント

3路線3駅利用可能なデザイナーズ賃貸住宅!

写真:物件の写真
写真:その他物件の写真01
写真:その他物件の写真02
写真:その他物件の写真03

物件概要

築年月 2004年3月
構造 鉄筋コンクリート造
所在階 地下1階・地上14階建ての3階
向き 西
バルコニー面積 -
駐車場 なし
入居可能日 2025年12月31日予定
賃貸借の種類 普通賃貸借
契約期間 2年
共益費・管理費 15,000円
敷金 20.7万円
礼金 310,500円
保証金 -
償却金 -
更新料 更新後賃料:1ヶ月
保証料等 要加入(2年16550円)
保証会社補足 レジデンシャルパートナーズ 保証料:賃料等の50%(最低2万)、月額保証・事務手数料:賃料等の1%(更新料無)
取引態様 媒介
情報更新日 2025年11月13日
次回更新予定日 2025年11月19日

※現状と異なる場合は、現状を優先させていただきます。取引態様の欄に「媒介」と表示された物件は「仲介物件」です。ご成約の際には仲介手数料を申し受けます。

ピタットハウス大森東口店TEL:03-5753-3550