6万円
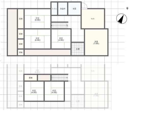
6DK
種別 一戸建
専有面積 91.91㎡
おすすめ
ポイント
            
                【当店は仲介手数料0円】広ーいお庭付き戸建て賃貸
                
            
            
                リフォームで生まれ変わった6DKの広々邸宅。家族みんながのびのび過ごせる間取りと、穏やかな揖斐川の環境が魅力。
            
            
 
            
         
                
             
                
             
                
            | 築年月 | 1972年11月 | 
|---|---|
| 構造 | 木造 | 
| 所在階 | 2階建ての2階 | 
| 向き | - | 
| バルコニー面積 | - | 
| 駐車場 | 有り(無料) | 
| 入居可能日 | 相談 | 
| 賃貸借の種類 | 普通賃貸借 | 
| 契約期間 | 2年 | 
| 共益費・管理費 | - | 
| 敷金 | - | 
| 礼金 | - | 
| 保証金 | - | 
| 償却金 | - | 
| 更新料 | - | 
| 保証料等 | 要加入(2年1925円) | 
| 保証会社補足 | 初回保証委託料:月額賃料総額の50%+更新料13,000円/年+口座振替手数料330円(税込・月) | 
| 取引態様 | 媒介 | 
| 情報更新日 | 2025年10月30日 | 
| 次回更新予定日 | 2025年11月6日 | 
設備・特記
                    
                        
                            
                                《設備》専用庭/敷地内駐車場/駐輪場/プロパンガス/閑静な住宅街/ガスコンロ設置可/室内洗濯機置場/収納スペース/陽当り良好/押入/バス・トイレ別/独立洗面台/温水洗浄便座 
                            
                        
                        
                            
                                《物件の特徴》二人入居可/敷金不要/礼金不要/仲介手数料不要/保証金不要 
                            
                        
                    
                    《その他一時金》鍵交換費用:22000円 
                    《その他月額費用》もっと安心サポート:1925円/月 
                    
                
備考
                    
                        《更新事務手数料》:11,000円
                    
                    
                    
                    
                    
                        《駐輪場》有り(無料)
                    
                    
                        《その他》1年未満の解約は2ヶ月賃料、2年未満は1ヶ月賃料の違約金が発生します。 室内クリーニング費用 退去時精算
                    
                
※現状と異なる場合は、現状を優先させていただきます。取引態様の欄に「媒介」と表示された物件は「仲介物件」です。ご成約の際には仲介手数料を申し受けます。