5.68万円
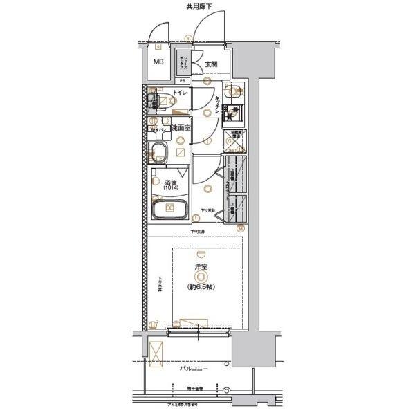
1K
種別 マンション
専有面積 23.01㎡
おすすめ
ポイント
☆★お部屋探しはピタットハウス久屋大通店へ★☆
ペット飼育(小型犬、猫)可能物件となります! 当日予約や仕事終わりのご案内も大歓迎です!!
| 築年月 | 2024年6月 |
|---|---|
| 構造 | 鉄筋コンクリート造 |
| 所在階 | 14階建ての7階 |
| 向き | 東 |
| バルコニー面積 | 5.16㎡ |
| 駐車場 | なし |
| 入居可能日 | 2026年2月20日予定 |
| 賃貸借の種類 | 普通賃貸借 |
| 契約期間 | 2年 |
| 共益費・管理費 | 10,000円 |
| 敷金 | - |
| 礼金 | - |
| 保証金 | - |
| 償却金 | - |
| 更新料 | - |
| 保証料等 | 要加入(2年17000円) |
| 保証会社補足 | 要確認 |
| 取引態様 | 媒介 |
| 情報更新日 | 2026年1月5日 |
| 次回更新予定日 | 2026年1月15日 |
設備・特記
《設備》エレベータ/宅配ボックス/都市ガス/敷地内ごみ置き場/インターネット対応/インターネット無料/CATV/オートロック/TVモニター付きインターホン/防犯カメラ/日勤管理/エアコン/バス・トイレ別/浴室乾燥機/洗髪洗面化粧台/独立洗面台/温水洗浄便座/シャワー/洗面化粧台/フローリング/バルコニー/室内洗濯機置場/下駄箱/クローゼット/照明器具/陽当り良好/システムキッチン/ガスコンロ(2口)
《物件の特徴》ペット相談可/オンライン内見可/IT重説対応物件/敷金不要/礼金不要
《その他一時金》カギ交換費用 / :44000円
《その他月額費用》24H駆けつけサービス:990円/月
備考
《更新事務手数料》:11,000円
《その他》ペット飼育可(小型犬・猫合計2匹まで) 1匹につき敷金+1ヶ月
※現状と異なる場合は、現状を優先させていただきます。取引態様の欄に「媒介」と表示された物件は「仲介物件」です。ご成約の際には仲介手数料を申し受けます。