5.8万円
1K
種別 マンション
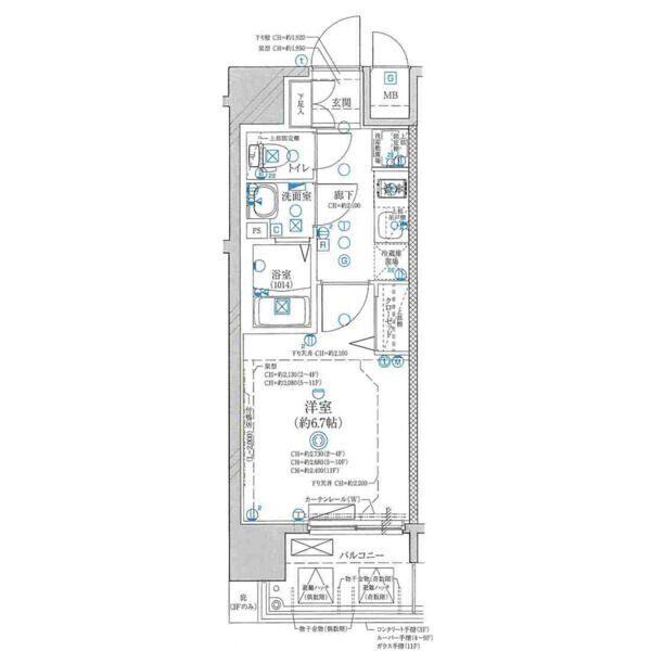
専有面積 24.02㎡
おすすめ
ポイント
☆★お部屋探しはピタットハウス久屋大通店にお任せを★☆
東別院駅・上前津駅と2駅ご利用可能(^^)/オートロック・TVモニターホン・宅配ボックス・インターネット無料・浴室乾燥機・ウォシュレットなど人気の設備が揃っており、幅広い年齢層の方におススメ(^^♪
| 築年月 | 2020年8月 |
|---|---|
| 構造 | 鉄筋コンクリート造 |
| 所在階 | 11階建ての9階 |
| 向き | 東 |
| バルコニー面積 | 3.90㎡ |
| 駐車場 | なし |
| 入居可能日 | 相談 |
| 賃貸借の種類 | 普通賃貸借 |
| 契約期間 | 2年 |
| 共益費・管理費 | 12,000円 |
| 敷金 | - |
| 礼金 | - |
| 保証金 | - |
| 償却金 | - |
| 更新料 | - |
| 保証料等 | 要加入(2年16000円) |
| 保証会社補足 | 月額総賃料の50%・毎月:月額総賃料の1% |
| 取引態様 | 媒介 |
| 情報更新日 | 2026年4月12日 |
| 次回更新予定日 | 2026年4月24日 |
設備・特記
《設備》インターネット対応/インターネット無料/BSアンテナ/CSアンテナ/光回線/高速ネット対応/オートロック/TVモニター付きインターホン/ピッキング対策キー/24時間セキュリティー/モニタ付オートロック/エアコン/バス・トイレ別/浴室乾燥機/洗髪洗面化粧台/独立洗面台/温水洗浄便座/シャワー/浴室暖房/洗面化粧台/フローリング/バルコニー/室内洗濯機置場/下駄箱/クローゼット/収納スペース/照明器具/全居室収納/全室照明付き/24時間換気システム/眺望良好/全居室洋室/全居室6畳以上/システムキッチン/ガスコンロ(2口)/角部屋/分譲マンションタイプ/エレベータ/宅配ボックス/駐輪場/駅まで平坦/都市ガス/敷地内ごみ置き場/デザイナーズ/都市ガス給湯/バイク置場
《物件の特徴》オンライン内見可/オンライン相談可/IT重説対応物件/敷金不要/礼金不要/保証人不要
《その他一時金》-
《その他月額費用》-
備考
※現状と異なる場合は、現状を優先させていただきます。取引態様の欄に「媒介」と表示された物件は「仲介物件」です。ご成約の際には仲介手数料を申し受けます。