7.5万円
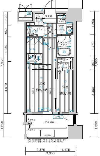
1LDK
種別 マンション
専有面積 28.88㎡
おすすめ
ポイント
11月末までのお申込みに限り、仲介手数料割引キャンペーン中!
福岡市内全域の物件をご紹介可能です!初期費用のクレカ決済可◎来店不要、オンライン見学・契約手続可◎ご質問・ご要望はLINEorお電話にてお問合せ下さい!ご希望に沿ったお部屋を複数ご提案致します♪
| 築年月 | 2020年9月 |
|---|---|
| 構造 | 鉄筋コンクリート造 |
| 所在階 | 15階建ての2階 |
| 向き | 北東 |
| バルコニー面積 | - |
| 駐車場 | 空きなし |
| 入居可能日 | 相談 |
| 賃貸借の種類 | 普通賃貸借 |
| 契約期間 | 1年 |
| 共益費・管理費 | 3,000円 |
| 敷金 | 7.5万円 |
| 礼金 | 150,000円 |
| 保証金 | - |
| 償却金 | - |
| 更新料 | - |
| 保証料等 | 要加入(2年18000円) |
| 保証会社補足 | 月額合計の50% 更新料 13,000/年 |
| 取引態様 | 媒介 |
| 情報更新日 | 2025年10月21日 |
| 次回更新予定日 | 2025年10月28日 |
設備・特記
《設備》フローリング/バルコニー/室内洗濯機置場/下駄箱/クローゼット/バス・トイレ別/浴室乾燥機/洗髪洗面化粧台/独立洗面台/温水洗浄便座/シャワー/洗面所/トイレ/洗面台/エアコン/オートロック/TVモニター付きインターホン/防犯カメラ/インターネット無料/エレベータ/宅配ボックス/敷地内駐車場/駐輪場/敷地内ごみ置き場/デザイナーズ/システムキッチン/ガスコンロ(2口)
《物件の特徴》ペット相談可
《その他一時金》鍵交換代:33000円 / 室内消毒費:13200円
《その他月額費用》町費:300円/月 24時間サポート:550円/月
備考
※現状と異なる場合は、現状を優先させていただきます。取引態様の欄に「媒介」と表示された物件は「仲介物件」です。ご成約の際には仲介手数料を申し受けます。