7.6万円
1LDK
種別 マンション
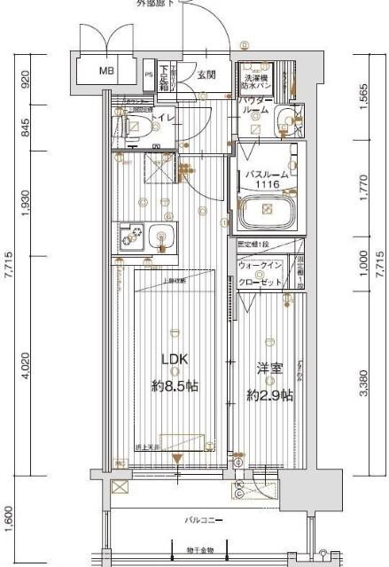
専有面積 28.93㎡
おすすめ
ポイント
☆ネット無料☆ペット相談可☆デザイナーズ☆
福岡市内全域の物件をご紹介可能です!初期費用のクレカ決済可◎来店不要、オンライン見学・契約手続可◎ご質問・ご要望はLINEorお電話にてお問合せ下さい!ご希望に沿ったお部屋を複数ご提案致します♪
| 築年月 | 2018年11月 |
|---|---|
| 構造 | 鉄筋コンクリート造 |
| 所在階 | 9階建ての2階 |
| 向き | 南東 |
| バルコニー面積 | - |
| 駐車場 | 空きなし |
| 入居可能日 | 相談 |
| 賃貸借の種類 | 普通賃貸借 |
| 契約期間 | 1年 |
| 共益費・管理費 | 3,000円 |
| 敷金 | 7.6万円 |
| 礼金 | 152,000円 |
| 保証金 | - |
| 償却金 | - |
| 更新料 | - |
| 保証料等 | 要加入(2年18000円) |
| 保証会社補足 | 月額合計の70% 更新料 13,000/年 口座振替手数料500円+税 |
| 取引態様 | 媒介 |
| 情報更新日 | 2025年10月25日 |
| 次回更新予定日 | 2025年11月1日 |
設備・特記
《設備》フローリング/バルコニー/室内洗濯機置場/下駄箱/ウォークインクロゼット/24時間換気システム/ガスコンロ(2口)/分譲マンションタイプ/エレベータ/宅配ボックス/敷地内駐車場/駐輪場/バイク置場/インターネット無料/BS・CS/オートロック/TVモニター付きインターホン/モニタ付オートロック/エアコン/バス・トイレ別/浴室乾燥機/洗髪洗面化粧台/温水洗浄便座
《物件の特徴》ペット相談可/初期費用カード決済可
《その他一時金》鍵交換代:33000円 / 室内消毒費:13200円
《その他月額費用》町費:200円/月 24時間サポート代:990円/月
備考
※現状と異なる場合は、現状を優先させていただきます。取引態様の欄に「媒介」と表示された物件は「仲介物件」です。ご成約の際には仲介手数料を申し受けます。