13.4万円
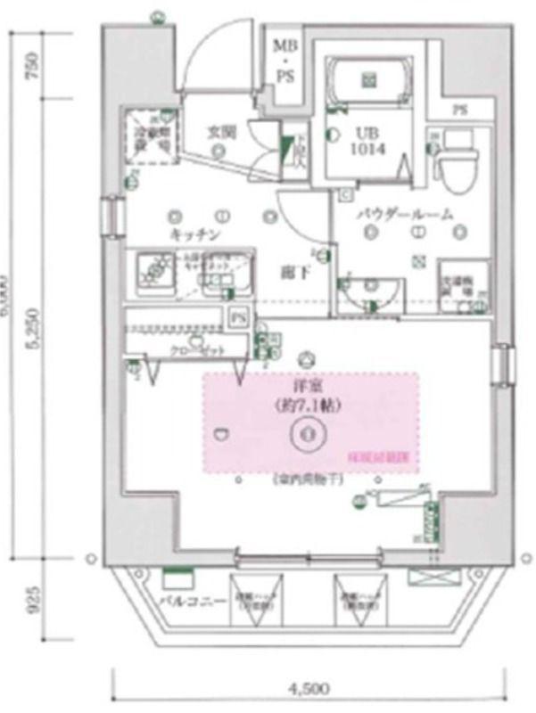
1K
種別 マンション
専有面積 25.65㎡
おすすめ
ポイント
通勤・通学に便利な立地
魅力的な立地と充実した設備が特徴で、住環境として非常に人気があります。セキュリティ強化されており、安心して暮らせる環境が整っています。また、宅配ボックスや駐輪場などの便利なサービスも提供されています。
| 築年月 | 2014年3月 |
|---|---|
| 構造 | 鉄筋コンクリート造 |
| 所在階 | 地下1階・地上12階建ての6階 |
| 向き | 南 |
| バルコニー面積 | - |
| 駐車場 | なし |
| 入居可能日 | 相談 |
| 賃貸借の種類 | 普通賃貸借 |
| 契約期間 | 2年 |
| 共益費・管理費 | 17,000円 |
| 敷金 | - |
| 礼金 | 20,100円 |
| 保証金 | 134,000円 |
| 償却金 | 13.4万円(解約時) |
| 更新料 | 更新後賃料:1.1ヶ月 |
| 保証料等 | 要加入(2年20000円) |
| 保証会社補足 | 保証料(初回契約時):50% 保証料(月額):800円、初回保証料 保証人あり:40% 無:50% |
| 取引態様 | 媒介 |
| 情報更新日 | 2026年2月2日 |
| 次回更新予定日 | 2026年2月9日 |
設備・特記
《設備》オートロック/TVモニター付きインターホン/モニタ付オートロック/防犯カメラ/オートロック置き配対応/角部屋/分譲マンションタイプ/エレベータ/宅配ボックス/敷地内ごみ置き場/常時ゴミ出し可能/システムキッチン/ガスコンロ(2口)/フローリング/バルコニー/室内洗濯機置場/下駄箱/クローゼット/収納スペース/玄関収納/バス・トイレ別/浴室乾燥機/独立洗面台/温水洗浄便座/エアコン
《物件の特徴》二人入居可/二人入居相談
《その他一時金》鍵交換代:27500円 / ハウスクリーニング:59400円 / エアコン分解清掃:16500円 / 24時間生活サポート:16500円 / 契約事務手数料:11000円
《その他月額費用》-
備考
※現状と異なる場合は、現状を優先させていただきます。取引態様の欄に「媒介」と表示された物件は「仲介物件」です。ご成約の際には仲介手数料を申し受けます。