7万円
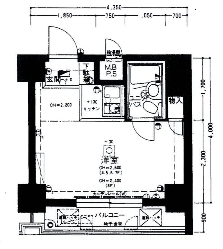
1R
種別 マンション
専有面積 17.40㎡
おすすめ
ポイント
通勤・通学に便利な立地
周辺には、飲食店やカフェ、スーパーなどが充実しており、日常の買い物や外食にも困りません。 近くには公園も点在しており、休日にはリラックスした時間を過ごすのにも最適です。
| 築年月 | 1984年10月 |
|---|---|
| 構造 | 鉄骨鉄筋コンクリート造 |
| 所在階 | 8階建ての6階 |
| 向き | 南東 |
| バルコニー面積 | - |
| 駐車場 | なし |
| 入居可能日 | 相談 |
| 賃貸借の種類 | 普通賃貸借 |
| 契約期間 | 2年 |
| 共益費・管理費 | 5,000円 |
| 敷金 | 7万円 |
| 礼金 | 70,000円 |
| 保証金 | - |
| 償却金 | - |
| 更新料 | 更新後賃料:1ヶ月 |
| 保証料等 | 要加入(2年20000円) |
| 保証会社補足 | 初回:月額総賃料の50% 月額保証料2% |
| 取引態様 | 媒介 |
| 情報更新日 | 2026年1月10日 |
| 次回更新予定日 | 2026年1月17日 |
設備・特記
《設備》システムキッチン/IHコンロ/フローリング/バルコニー/下駄箱/クローゼット/収納スペース/シューズIC/エアコン/エレベータ
《その他一時金》鍵交換代:27500円 / プレミアデスク(2年間):16500円
《その他月額費用》入居サポート:1100円/月
備考
《更新事務手数料》:22,000円
※現状と異なる場合は、現状を優先させていただきます。取引態様の欄に「媒介」と表示された物件は「仲介物件」です。ご成約の際には仲介手数料を申し受けます。