62.7万円
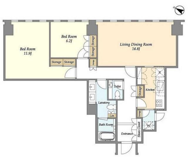
2LDK
種別 マンション
専有面積 93.97㎡
おすすめ
ポイント
当物件はオンラインまたはお近くの店舗でご相談お申込を承ります
室内見学承ります・お客様のご都合に合わせてオンラインまたはお近くの店舗でご提案可・初期費用分割払い可・クレジットカード利用可・引越業者割引・初期費用のお見積や入居日のご相談もお気軽にお問合せください
| 築年月 | 2002年11月 |
|---|---|
| 構造 | 鉄筋コンクリート造 |
| 所在階 | 地下3階・地上38階建ての27階 |
| 向き | 北東 |
| バルコニー面積 | - |
| 駐車場 | なし |
| 入居可能日 | 2026年3月1日予定 |
| 賃貸借の種類 | 定期賃貸借 |
| 契約期間 | 3年 |
| 共益費・管理費 | 25,000円 |
| 敷金 | 1ヶ月 + ペット積み増し(1ヶ月) |
| 礼金 | 627,000円 |
| 保証金 | - |
| 償却金 | - |
| 更新料 | - |
| 保証料等 | 要加入(2年16550円) |
| 保証会社補足 | 初回:月額総賃料50%〜 |
| 取引態様 | 媒介 |
| 情報更新日 | 2026年2月8日 |
| 次回更新予定日 | 2026年2月15日 |
設備・特記
《設備》バス・トイレ別/独立洗面台/脱衣所/エアコン/オートロック/TVモニター付きインターホン/防犯カメラ/インターネット無料/CATV/BSアンテナ/CSアンテナ/その他インターネット/BS・CS/LAN/角部屋/エレベータ/宅配ボックス/駐輪場/フロントサービス/敷地内ごみ置き場/常時ゴミ出し可能/タワー型マンション/エレベーター2基以上/公営水道/下水/システムキッチン/IHコンロ/食器洗浄乾燥機/独立型キッチン/オーブンレンジ/コンロ四口以上/フローリング/室内洗濯機置場/下駄箱/クローゼット/トランクルーム/全居室フローリング/玄関収納/眺望良好/クロゼット3ヶ所/高層階/2面採光
《物件の特徴》ペット相談可/保証会社利用可/コンビニ近く/二人入居可/二人入居相談/保証人不要/初期費用カード決済可
《その他一時金》鍵交換代(税込):33000円
《その他月額費用》-
備考
《その他》当物件は「住まいのリライフ」で取り扱っております。リライフは首都圏24店舗のネットワークで豊富な物件情報をお客様へご提供します。当物件に類似した未公開物件なども合わせてご提案可能です。お気軽にお問合せください。
※現状と異なる場合は、現状を優先させていただきます。取引態様の欄に「媒介」と表示された物件は「仲介物件」です。ご成約の際には仲介手数料を申し受けます。