12.4万円
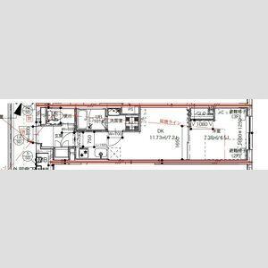
1DK
種別 マンション
専有面積 28.79㎡
おすすめ
ポイント
当物件はオンラインまたはお近くの店舗でご相談お申込を承ります
室内見学承ります・お客様のご都合に合わせてオンラインまたはお近くの店舗でご提案可・初期費用分割払い可・クレジットカード利用可・引越業者割引・初期費用のお見積や入居日のご相談もお気軽にお問合せください
| 築年月 | 2023年9月 |
|---|---|
| 構造 | 鉄筋コンクリート造 |
| 所在階 | 5階建ての2階 |
| 向き | 南 |
| バルコニー面積 | - |
| 駐車場 | なし |
| 入居可能日 | 相談 |
| 賃貸借の種類 | 普通賃貸借 |
| 契約期間 | 2年 |
| 共益費・管理費 | 12,000円 |
| 敷金 | ペット積み増し(1ヶ月) |
| 礼金 | 124,000円 |
| 保証金 | - |
| 償却金 | - |
| 更新料 | 更新後賃料:1ヶ月 |
| 保証料等 | 要加入(2年20000円) |
| 保証会社補足 | 月額総家賃50%〜 |
| 取引態様 | 媒介 |
| 情報更新日 | 2025年11月22日 |
| 次回更新予定日 | 2025年11月29日 |
設備・特記
《設備》エアコン/オートロック/防犯カメラ/インターネット無料/その他インターネット/LAN/宅配ボックス/駐輪場/耐震構造/都市ガス/バイク置場/公営水道/下水/システムキッチン/ガスコンロ(2口)/フローリング/バルコニー/室内洗濯機置場/下駄箱/クローゼット/全居室フローリング/南面バルコニー/玄関収納/24時間換気システム/南向き/バス・トイレ別/浴室乾燥機/独立洗面台/温水洗浄便座/脱衣所
《物件の特徴》ペット相談可/保証会社利用可/保証人不要/初期費用カード決済可
《その他一時金》鍵交換代(税込):38500円 / 室内清掃費用(税込):71500円 / プレミアデスク(初回のみ):16500円
《その他月額費用》バイク置場(月額):5500円/月
備考
《その他》当物件は「住まいのリライフ」で取り扱っております。リライフは首都圏25店舗のネットワークで豊富な物件情報をお客様へご提供します。当物件に類似した未公開物件なども合わせてご提案可能です。お気軽にお問合せください。 ペット:敷金追加償却違約金有:1年未満:1ヶ月プレミアデスク2年(税込):1.65万円/契約時ルームクリーニング費用(税込):7.15万円
※現状と異なる場合は、現状を優先させていただきます。取引態様の欄に「媒介」と表示された物件は「仲介物件」です。ご成約の際には仲介手数料を申し受けます。