17.4万円
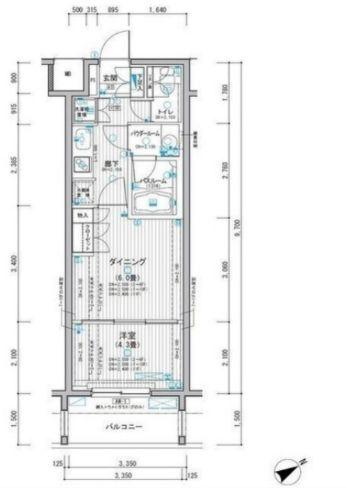
1DK
種別 マンション
専有面積 34.20㎡
おすすめ
ポイント
当物件はオンラインまたは店舗でご相談お申込を承ります
室内見学承ります・お客様のご都合に合わせてオンラインまたはお近くの店舗でご提案可・初期費用分割払い可・クレジットカード利用可・引越業者割引・初期費用のお見積や入居日のご相談もお気軽にお問合せください
| 築年月 | 2004年8月 |
|---|---|
| 構造 | 鉄骨鉄筋コンクリート造 |
| 所在階 | 12階建ての2階 |
| 向き | 南東 |
| バルコニー面積 | - |
| 駐車場 | なし |
| 入居可能日 | 2026年5月1日予定 |
| 賃貸借の種類 | 定期賃貸借 |
| 契約期間 | 3年 |
| 共益費・管理費 | 8,000円 |
| 敷金 | 1ヶ月 + ペット積み増し(1ヶ月) |
| 礼金 | 174,000円 |
| 保証金 | - |
| 償却金 | - |
| 更新料 | - |
| 保証料等 | 要加入(2年16550円) |
| 保証会社補足 | 賃料等の50%〜 |
| 取引態様 | 媒介 |
| 情報更新日 | 2026年4月28日 |
| 次回更新予定日 | 2026年5月5日 |
設備・特記
《設備》システムキッチン/ガスコンロ(2口)/エレベータ/宅配ボックス/駐輪場/平面駐車場/自走式駐車場/始発駅/都市ガス/敷地内ごみ置き場/常時ゴミ出し可能/公営水道/下水/CATV/BSアンテナ/CSアンテナ/その他インターネット/BS・CS/LAN/オートロック/TVモニター付きインターホン/ピッキング対策キー/防犯カメラ/エアコン/バス・トイレ別/浴室乾燥機/独立洗面台/温水洗浄便座/脱衣所/フローリング/バルコニー/室内洗濯機置場/下駄箱/クローゼット/全居室フローリング/南面バルコニー/玄関収納/24時間換気システム/東南向き
《物件の特徴》ペット相談可/保証会社利用可/コンビニ近く/二人入居可/二人入居相談/保証人不要/初期費用カード決済可
《その他一時金》鍵交換代(税込):33000円
《その他月額費用》インターネット接続料(月額):1782円/月
備考
《その他》リライフは首都圏23店舗のネットワークで豊富な物件情報をお客様へご提供します。当物件に類似した未公開物件なども合わせてご提案可能です。お気軽にお問合せください。
※現状と異なる場合は、現状を優先させていただきます。取引態様の欄に「媒介」と表示された物件は「仲介物件」です。ご成約の際には仲介手数料を申し受けます。