6.5万円
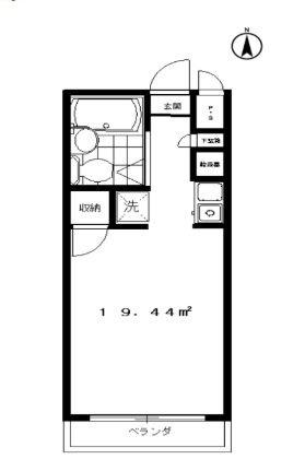
1R
種別 マンション
専有面積 19.44㎡
おすすめ
ポイント
当物件はオンラインまたは店舗でご相談お申込を承ります
室内見学承ります・お客様のご都合に合わせてオンラインまたはお近くの店舗でご提案可・初期費用分割払い可・クレジットカード利用可・引越業者割引・初期費用のお見積や入居日のご相談もお気軽にお問合せください
| 築年月 | 1994年3月 |
|---|---|
| 構造 | 鉄筋コンクリート造 |
| 所在階 | 4階建ての1階 |
| 向き | 南 |
| バルコニー面積 | - |
| 駐車場 | なし |
| 入居可能日 | 相談 |
| 賃貸借の種類 | 普通賃貸借 |
| 契約期間 | 2年 |
| 共益費・管理費 | - |
| 敷金 | 1ヶ月 |
| 礼金 | 65,000円 |
| 保証金 | - |
| 償却金 | - |
| 更新料 | 更新後賃料:1ヶ月 |
| 保証料等 | 要加入 |
| 保証会社補足 | 詳細はお問い合わせください。 |
| 取引態様 | 媒介 |
| 情報更新日 | 2026年4月19日 |
| 次回更新予定日 | 2026年4月26日 |
設備・特記
《設備》CATV/光回線/CATVインターネット/防犯カメラ/エアコン/フローリング/バルコニー/室内洗濯機置場/下駄箱/クローゼット/玄関収納/南向き/冷蔵庫/駐輪場/オール電化/敷地内ごみ置き場/公営水道/下水
《物件の特徴》保証会社利用可/保証人不要/初期費用カード決済可
《その他一時金》-
《その他月額費用》-
備考
《その他》リライフは首都圏23店舗のネットワークで豊富な物件情報をお客様へご提供します。当物件に類似した未公開物件なども合わせてご提案可能です。お気軽にお問合せください。
※現状と異なる場合は、現状を優先させていただきます。取引態様の欄に「媒介」と表示された物件は「仲介物件」です。ご成約の際には仲介手数料を申し受けます。