9万円
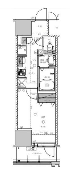
1K
種別 マンション
専有面積 26.09㎡
おすすめ
ポイント
当物件はオンラインまたはお近くの店舗でご相談お申込を承ります
室内見学承ります・お客様のご都合に合わせてオンラインまたはお近くの店舗でご提案可・初期費用分割払い可・クレジットカード利用可・引越業者割引・初期費用のお見積や入居日のご相談もお気軽にお問合せください
| 築年月 | 2015年7月 |
|---|---|
| 構造 | 鉄筋コンクリート造 |
| 所在階 | 18階建ての2階 |
| 向き | 南 |
| バルコニー面積 | - |
| 駐車場 | なし |
| 入居可能日 | 2025年12月1日予定 |
| 賃貸借の種類 | 普通賃貸借 |
| 契約期間 | 2年 |
| 共益費・管理費 | 15,000円 |
| 敷金 | ペット積み増し(1ヶ月) |
| 礼金 | 180,000円 |
| 保証金 | - |
| 償却金 | - |
| 更新料 | 更新後賃料:1.5ヶ月 |
| 保証料等 | 要加入 |
| 保証会社補足 | 初回:月額総家賃の50%〜 |
| 取引態様 | 媒介 |
| 情報更新日 | 2025年11月24日 |
| 次回更新予定日 | 2025年12月1日 |
設備・特記
《設備》エアコン/オートロック/TVモニター付きインターホン/防犯カメラ/セキュリティ会社/BSアンテナ/CSアンテナ/光回線/BS・CS/分譲マンションタイプ/エレベータ/宅配ボックス/駐輪場/都市ガス/敷地内ごみ置き場/常時ゴミ出し可能/バイク置場/エレベーター2基以上/公営水道/下水/システムキッチン/ガスコンロ(2口)/フローリング/バルコニー/室内洗濯機置場/下駄箱/クローゼット/南面バルコニー/陽当り良好/玄関収納/24時間換気システム/南向き/バス・トイレ別/浴室乾燥機/独立洗面台/温水洗浄便座/脱衣所
《物件の特徴》ペット相談可/保証会社利用可/ルームシェア可/高齢者歓迎/楽器不可/二人入居可/二人入居相談/ルームシェア相談/単身者相談/保証人不要/初期費用カード決済可
《その他一時金》鍵交換代(税込):33000円 / 室内抗菌代(初回のみ):13000円
《その他月額費用》ベルプラス(家財保険含む)(月額):2200円/月
備考
《その他》当物件は「住まいのリライフ」で取り扱っております。リライフは首都圏25店舗のネットワークで豊富な物件情報をお客様へご提供します。当物件に類似した未公開物件なども合わせてご提案可能です。お気軽にお問合せください。 ペット飼育時敷金積増/償却となります違約金有:1年未満解約時、総賃料2か月分。1年以上1.5年未満解約時、総賃料1.5ヶ月分
※現状と異なる場合は、現状を優先させていただきます。取引態様の欄に「媒介」と表示された物件は「仲介物件」です。ご成約の際には仲介手数料を申し受けます。