16.5万円
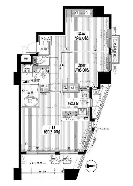
2LDK
種別 マンション
専有面積 60.44㎡
おすすめ
ポイント
当物件はオンラインまたはお近くの店舗でご相談お申込を承ります
室内見学承ります・お客様のご都合に合わせてオンラインまたはお近くの店舗でご提案可・初期費用分割払い可・クレジットカード利用可・引越業者割引・初期費用のお見積や入居日のご相談もお気軽にお問合せください
| 築年月 | 2004年1月 |
|---|---|
| 構造 | 鉄骨鉄筋コンクリート造 |
| 所在階 | 9階建ての9階 |
| 向き | 東 |
| バルコニー面積 | - |
| 駐車場 | なし |
| 入居可能日 | 相談 |
| 賃貸借の種類 | 普通賃貸借 |
| 契約期間 | 2年 |
| 共益費・管理費 | 10,000円 |
| 敷金 | 1ヶ月 |
| 礼金 | 165,000円 |
| 保証金 | - |
| 償却金 | - |
| 更新料 | 更新後賃料:1.5ヶ月 |
| 保証料等 | 要加入 |
| 保証会社補足 | 詳細はお問い合わせください |
| 取引態様 | 媒介 |
| 情報更新日 | 2026年1月31日 |
| 次回更新予定日 | 2026年2月7日 |
設備・特記
《設備》オートロック/TVモニター付きインターホン/最上階/角部屋/分譲マンションタイプ/エレベータ/宅配ボックス/駐輪場/都市ガス/バイク置場/公営水道/下水/システムキッチン/フローリング/バルコニー/室内洗濯機置場/下駄箱/クローゼット/玄関収納/2面バルコニー/24時間換気システム/クロゼット2ヶ所/上階無し/2面採光/通風良好/バス・トイレ別/浴室乾燥機/追い焚き風呂/独立洗面台/温水洗浄便座/オートバス/脱衣所/エアコン
《物件の特徴》保証会社利用可/初期費用カード決済可
《その他一時金》鍵交換代(税込):22000円
《その他月額費用》住宅総合保険(月額):850円/月 安心サポート(月額):880円/月
備考
《その他》当物件は「住まいのリライフ」で取り扱っております。リライフは首都圏25店舗のネットワークで豊富な物件情報をお客様へご提供します。当物件に類似した未公開物件なども合わせてご提案可能です。お気軽にお問合せください。
※現状と異なる場合は、現状を優先させていただきます。取引態様の欄に「媒介」と表示された物件は「仲介物件」です。ご成約の際には仲介手数料を申し受けます。