9.5万円
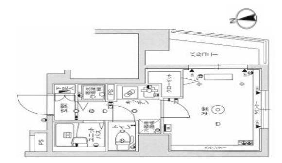
1K
種別 マンション
専有面積 21.48㎡
おすすめ
ポイント
当物件はオンラインまたは店舗でご相談お申込を承ります
室内見学承ります・お客様のご都合に合わせてオンラインまたはお近くの店舗でご提案可・初期費用分割払い可・クレジットカード利用可・引越業者割引・初期費用のお見積や入居日のご相談もお気軽にお問合せください
| 築年月 | 2012年10月 |
|---|---|
| 構造 | 鉄筋コンクリート造 |
| 所在階 | 11階建ての3階 |
| 向き | 南 |
| バルコニー面積 | - |
| 駐車場 | なし |
| 入居可能日 | 2026年4月1日予定 |
| 賃貸借の種類 | 普通賃貸借 |
| 契約期間 | 2年 |
| 共益費・管理費 | 10,000円 |
| 敷金 | 1ヶ月 |
| 礼金 | - |
| 保証金 | - |
| 償却金 | - |
| 更新料 | 更新後賃料:1ヶ月 |
| 保証料等 | 要加入 |
| 保証会社補足 | 月額総家賃の50%〜 |
| 取引態様 | 媒介 |
| 情報更新日 | 2026年3月3日 |
| 次回更新予定日 | 2026年3月10日 |
設備・特記
《設備》CATV/BSアンテナ/CSアンテナ/その他インターネット/BS・CS/LAN/角部屋/分譲マンションタイプ/エレベータ/宅配ボックス/駐輪場/都市ガス/敷地内ごみ置き場/常時ゴミ出し可能/バイク置場/公営水道/下水/システムキッチン/ガスコンロ(2口)/グリル/フローリング/バルコニー/室内洗濯機置場/下駄箱/クローゼット/陽当り良好/玄関収納/24時間換気システム/南向き/2面採光/通風良好/バス・トイレ別/浴室乾燥機/温水洗浄便座/エアコン/オートロック/TVモニター付きインターホン/ピッキング対策キー/ダブルロックドア/防犯カメラ
《物件の特徴》保証会社利用可/事務所利用不可/ルームシェア不可/保証人不要/初期費用カード決済可
《その他一時金》鍵交換代(税込):33000円 / 緊急駆付けサポート(初回のみ):16500円
《その他月額費用》総合保険サポート(月額):1000円/月
備考
《その他》リライフは首都圏23店舗のネットワークで豊富な物件情報をお客様へご提供します。当物件に類似した未公開物件なども合わせてご提案可能です。お気軽にお問合せください。違約金有:1年以内 2ヶ月、2年以内 1ヶ月
※現状と異なる場合は、現状を優先させていただきます。取引態様の欄に「媒介」と表示された物件は「仲介物件」です。ご成約の際には仲介手数料を申し受けます。