24万円
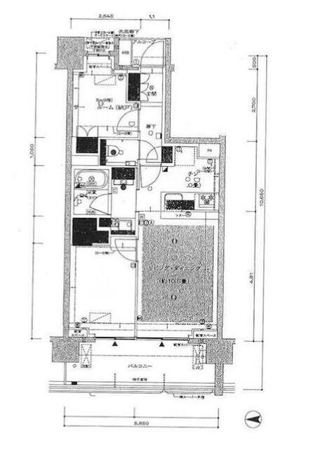
2LDK
種別 マンション
専有面積 54.58㎡
おすすめ
ポイント
当物件はオンラインまたは店舗でご相談お申込を承ります
室内見学承ります・お客様のご都合に合わせてオンラインまたはお近くの店舗でご提案可・初期費用分割払い可・クレジットカード利用可・引越業者割引・初期費用のお見積や入居日のご相談もお気軽にお問合せください
| 築年月 | 2017年7月 |
|---|---|
| 構造 | 鉄筋コンクリート造 |
| 所在階 | 9階建ての6階 |
| 向き | 西 |
| バルコニー面積 | - |
| 駐車場 | なし |
| 入居可能日 | 2026年4月29日予定 |
| 賃貸借の種類 | 普通賃貸借 |
| 契約期間 | 2年 |
| 共益費・管理費 | 20,000円 |
| 敷金 | - |
| 礼金 | 240,000円 |
| 保証金 | - |
| 償却金 | - |
| 更新料 | 更新後賃料:1ヶ月 |
| 保証料等 | 要加入(2年27000円) |
| 保証会社補足 | 詳細はお問い合わせくださいませ |
| 取引態様 | 媒介 |
| 情報更新日 | 2026年2月21日 |
| 次回更新予定日 | 2026年2月28日 |
設備・特記
《設備》オートロック/TVモニター付きインターホン/ピッキング対策キー/ダブルロックドア/防犯カメラ/インターネット無料/BSアンテナ/CSアンテナ/その他インターネット/BS・CS/LAN/エレベータ/宅配ボックス/都市ガス/公営水道/下水/システムキッチン/カウンターキッチン/ガスコンロ(3口)/食器洗浄乾燥機/フローリング/バルコニー/室内洗濯機置場/下駄箱/クローゼット/全居室フローリング/ウォークインクロゼット/24時間換気システム/眺望良好/クロゼット2ヶ所/高層階/バス・トイレ別/追い焚き風呂/独立洗面台/温水洗浄便座/脱衣所/浴室床暖房/エアコン/エアコン2台以上
《物件の特徴》ペット相談可/保証会社利用可/楽器不可/二人入居可/二人入居相談/ルームシェア不可/保証人不要/初期費用カード決済可
《その他一時金》鍵交換代(税込):25000円 / 室内清掃費用(税込):77000円 / 事務手数料(初回のみ):20000円 / 24時間緊急サポート(初回のみ):22000円
《その他月額費用》-
備考
《その他》リライフは首都圏23店舗のネットワークで豊富な物件情報をお客様へご提供します。当物件に類似した未公開物件なども合わせてご提案可能です。お気軽にお問合せください。違約金有:一年未満解約時、賃料一ヵ月分
※現状と異なる場合は、現状を優先させていただきます。取引態様の欄に「媒介」と表示された物件は「仲介物件」です。ご成約の際には仲介手数料を申し受けます。