26.5万円
1LDK
種別 マンション
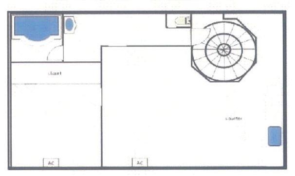
専有面積 59.50㎡
おすすめ
ポイント
当物件はオンラインまたは店舗でご相談お申込を承ります
室内見学承ります・お客様のご都合に合わせてオンラインまたはお近くの店舗でご提案可・初期費用分割払い可・クレジットカード利用可・引越業者割引・初期費用のお見積や入居日のご相談もお気軽にお問合せください
| 築年月 | 1999年12月 |
|---|---|
| 構造 | 鉄筋コンクリート造 |
| 所在階 | 地下2階・地上4階建ての4階 |
| 向き | - |
| バルコニー面積 | - |
| 駐車場 | なし |
| 入居可能日 | 相談 |
| 賃貸借の種類 | 定期賃貸借 |
| 契約期間 | 2年 |
| 共益費・管理費 | 5,000円 |
| 敷金 | - |
| 礼金 | - |
| 保証金 | - |
| 償却金 | - |
| 更新料 | - |
| 保証料等 | 要加入(2年20000円) |
| 保証会社補足 | 初回:月額総家賃50%〜 |
| 取引態様 | 媒介 |
| 情報更新日 | 2026年4月19日 |
| 次回更新予定日 | 2026年4月26日 |
設備・特記
《設備》室内洗濯機置場/テラス/上階無し/バス・トイレ別/独立洗面台/エアコン/オートロック/最上階/角部屋/都市ガス/1フロア1住戸/公営水道/下水/ガスコンロ(3口)
《物件の特徴》保証会社利用可/二人入居可/二人入居相談/保証人不要/初期費用カード決済可
《その他一時金》書類作成費(初回のみ):13200円
《その他月額費用》水道代(月額):7700円/月
備考
《その他》リライフは首都圏23店舗のネットワークで豊富な物件情報をお客様へご提供します。当物件に類似した未公開物件なども合わせてご提案可能です。お気軽にお問合せください。違約金有:短期解約時
※現状と異なる場合は、現状を優先させていただきます。取引態様の欄に「媒介」と表示された物件は「仲介物件」です。ご成約の際には仲介手数料を申し受けます。