14万円
2LDK
種別 一戸建
専有面積 87.56㎡
おすすめ
ポイント
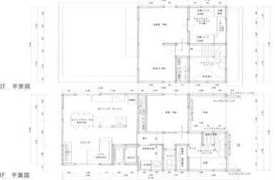
洗面所は浴室から独立しており、お風呂の湿気を避けられます。収納はウォークインクロゼット・シューズボッ
| 築年月 | 1933年1月 |
|---|---|
| 構造 | - |
| 所在階 | 2階建ての1階 |
| 向き | 南 |
| バルコニー面積 | - |
| 駐車場 | 有り(無料) |
| 入居可能日 | 相談 |
| 賃貸借の種類 | 普通賃貸借 |
| 契約期間 | 2年 |
| 共益費・管理費 | - |
| 敷金 | 28万円 |
| 礼金 | - |
| 保証金 | - |
| 償却金 | - |
| 更新料 | - |
| 保証料等 | 要加入 |
| 保証会社補足 | 加入要 初回保証料は家賃合計50%・月額保証維持費は家賃合計1.2% |
| 取引態様 | 媒介 |
| 情報更新日 | 2026年4月3日 |
| 次回更新予定日 | 2026年4月10日 |
設備・特記
《設備》モニタ付インターホン/エアコン/バス・トイレ別/温水洗浄便座/シャワー/洗面所独立/専用バス/トイレ/室内洗濯機置場/クローゼット/シューズボックス/ウォークインクローゼット/カウンターキッチン/ガスコンロ付/敷地内駐車場/都市ガス
《物件の特徴》ペット不可/楽器不可/二人入居可/事務所利用不可/保証人不要/初期費用カード決済可
《その他一時金》-
《その他月額費用》-
備考
《その他》エース安心サポート1100円(月額) ドアを開けたり直接会話しなくてもモニター越しに来訪者を確認できるモニター付きインターホンで防犯対策が可能です。収納はクロゼット・シューズボックスなど豊富なので、衣類や履き物の整理がしやすく便利です。二人での生活なら、楽しみも増えることでしょう。ガスレンジが備え付けられています。失敗したくない賃貸戸建て探しなら焼津市や東海道本線焼津付近に強い当社へご連絡ください
※現状と異なる場合は、現状を優先させていただきます。取引態様の欄に「媒介」と表示された物件は「仲介物件」です。ご成約の際には仲介手数料を申し受けます。