5.3万円
2LDK
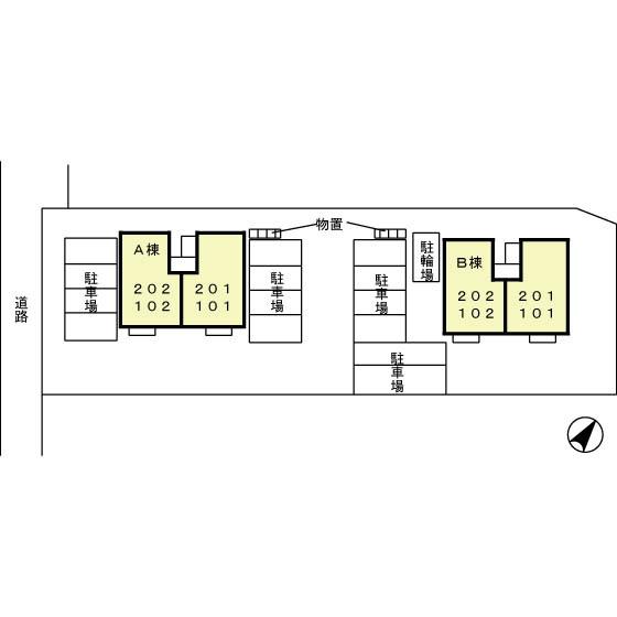
種別 アパート
専有面積 53.48㎡
おすすめ
ポイント
江刺エリア☆2LDK2階・駐車場(並列)2台無料☆
wifi無料☆ イオンスタイル江刺まで317m車で1分☆ 追い焚き・温水便座・室内物干し・専用物置もついています。 TVドアホンで来客確認も安心です。
| 築年月 | 1999年9月 |
|---|---|
| 構造 | 軽量鉄骨造 |
| 所在階 | 2階建ての2階 |
| 向き | - |
| バルコニー面積 | - |
| 駐車場 | 有り(無料) |
| 入居可能日 | 相談 |
| 賃貸借の種類 | 普通賃貸借 |
| 契約期間 | 2年 |
| 共益費・管理費 | 4,500円 |
| 敷金 | - |
| 礼金 | - |
| 保証金 | - |
| 償却金 | - |
| 更新料 | - |
| 保証料等 | - |
| 保証会社補足 | - |
| 取引態様 | 媒介 |
| 情報更新日 | 2026年2月5日 |
| 次回更新予定日 | 2026年2月13日 |
設備・特記
《設備》角部屋/敷地内駐車場/駐輪場/プロパンガス/公営水道/BSアンテナ/TVモニター付きインターホン/火災警報器(報知機)/カードキー/エアコン/バス・トイレ別/追い焚き風呂/温水洗浄便座/シャワー/洗面台/バルコニー/室内洗濯機置場/下駄箱/クローゼット/物置
《その他一時金》ルームクリーニング料金:71500円 / ICロック電池(初回):2750円
《その他月額費用》-
備考
《その他》機関保証加入必須。初回保証料18000円、月額保証料賃料等総額の1%+800円/月(その他商品あり)
※現状と異なる場合は、現状を優先させていただきます。取引態様の欄に「媒介」と表示された物件は「仲介物件」です。ご成約の際には仲介手数料を申し受けます。