24.2万円
店舗
種別 店舗
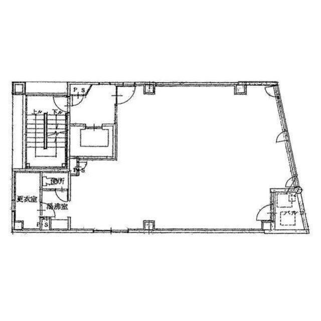
専有面積 81.11㎡
おすすめ
ポイント
| 築年月 | 1992年8月 |
|---|---|
| 構造 | 重量鉄骨造 |
| 所在階 | 地下1階・地上8階建ての4階 |
| 向き | - |
| バルコニー面積 | - |
| 駐車場 | なし |
| 入居可能日 | 相談 |
| 賃貸借の種類 | 普通賃貸借 |
| 契約期間 | 2年 |
| 共益費・管理費 | - |
| 敷金 | 132万円 |
| 礼金 | 220,000円 |
| 保証金 | - |
| 償却金 | - |
| 更新料 | - |
| 保証料等 | 要加入(2年) |
| 保証会社補足 | 管理会社指定の保証会社に加入して頂きます。 |
| 取引態様 | 媒介 |
| 情報更新日 | 2025年12月15日 |
| 次回更新予定日 | 2025年12月25日 |
設備・特記
《設備》トイレ/エレベータ/公営水道
《その他一時金》-
《その他月額費用》-
備考
《その他》保証会社加入必須 設備譲渡有償(エステサロン内装) 町費、商店会費等別途有 敷金:事務所利用の場合は3ヶ月 解約予告:事務所3ヶ月前予告/店舗6ヶ月前予告 エアコンは残置物 解約時は事務所仕様戻しになります
※現状と異なる場合は、現状を優先させていただきます。取引態様の欄に「媒介」と表示された物件は「仲介物件」です。ご成約の際には仲介手数料を申し受けます。